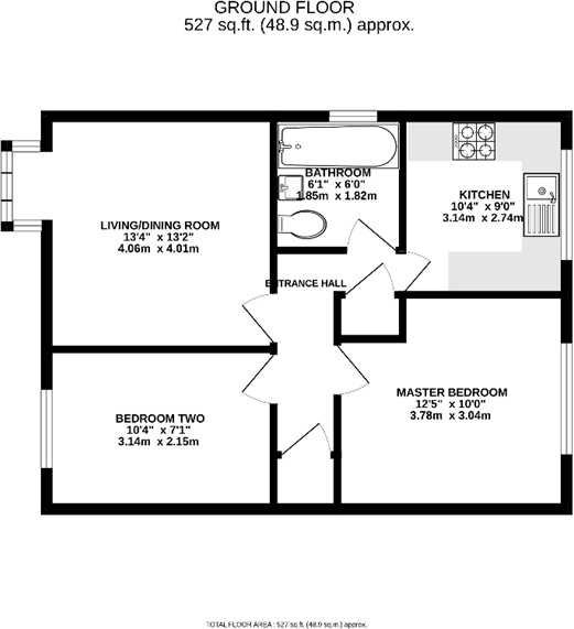
Ground-floor two-bedroom apartment, 527 sq ft
This ground-floor apartment offers practical, low-effort living close to Bracknell town centre and rail links — ideal for a first-time buyer or someone downsizing. The layout includes two double bedrooms, a bay-front reception room and a separate kitchen and bathroom, all within a compact 527 sq ft footprint. Communal gardens and residents’ parking add convenience, and the sale is chain-free for a straightforward move.
The building dates from the early 2000s and benefits from double glazing and a long lease (926 years). Main heating is by electric storage heaters, so running costs can be higher than gas-heated homes. The property requires some updating: the kitchen and general finishes are dated and present clear scope for modernisation and value-adding improvements.
Ongoing charges are notable: a service charge of about £2,200pa and ground rent of £135pa. Council tax is described as affordable. With good local schools, fast broadband and excellent mobile signal, the location suits buyers who prioritise transport links and local amenities over low-maintenance new build features.











































