**Standout Features:**
- Detached bungalow with two double bedrooms
- Generous conservatory and versatile home office/playroom
- Driveway and garage for convenient parking
- Expansive westerly-facing garden (approx. 80 ft)
- No onward chain, allowing for a swift acquisition
- Modernisation and updating required for a personalized touch
- Positioned in a peaceful, residential neighborhood with nearby amenities
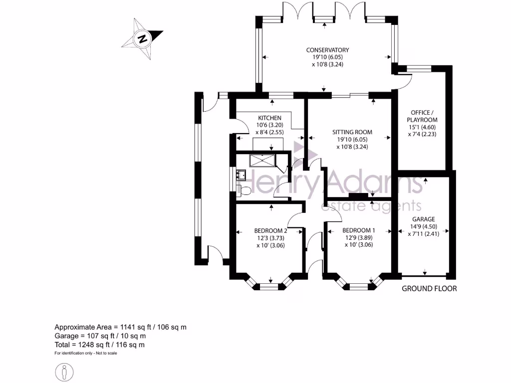
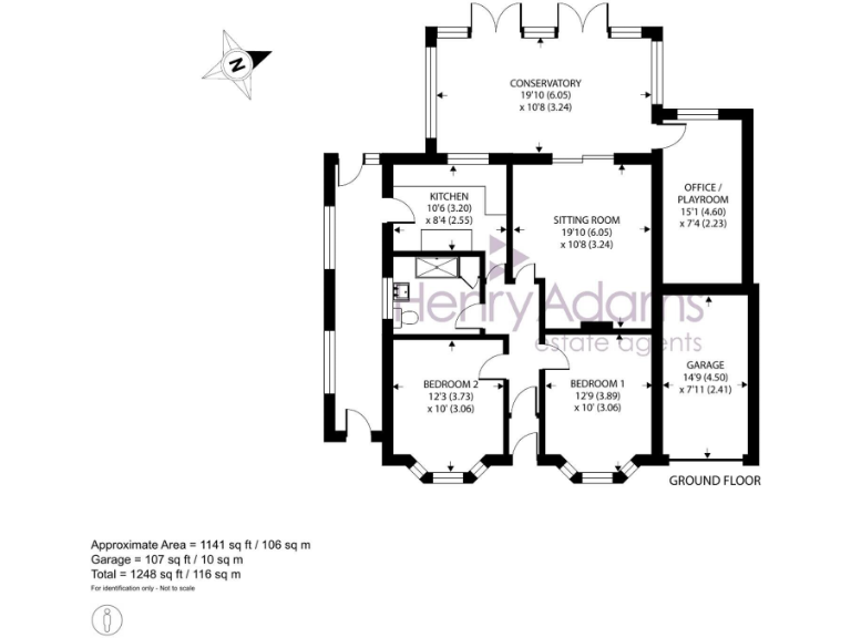
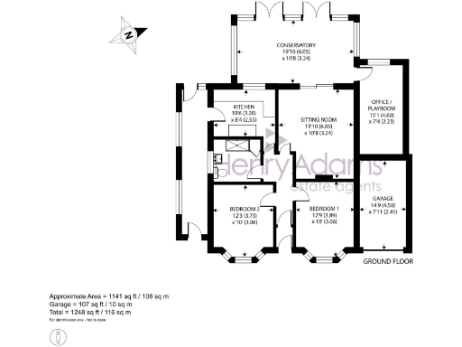
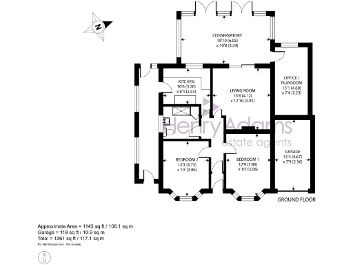
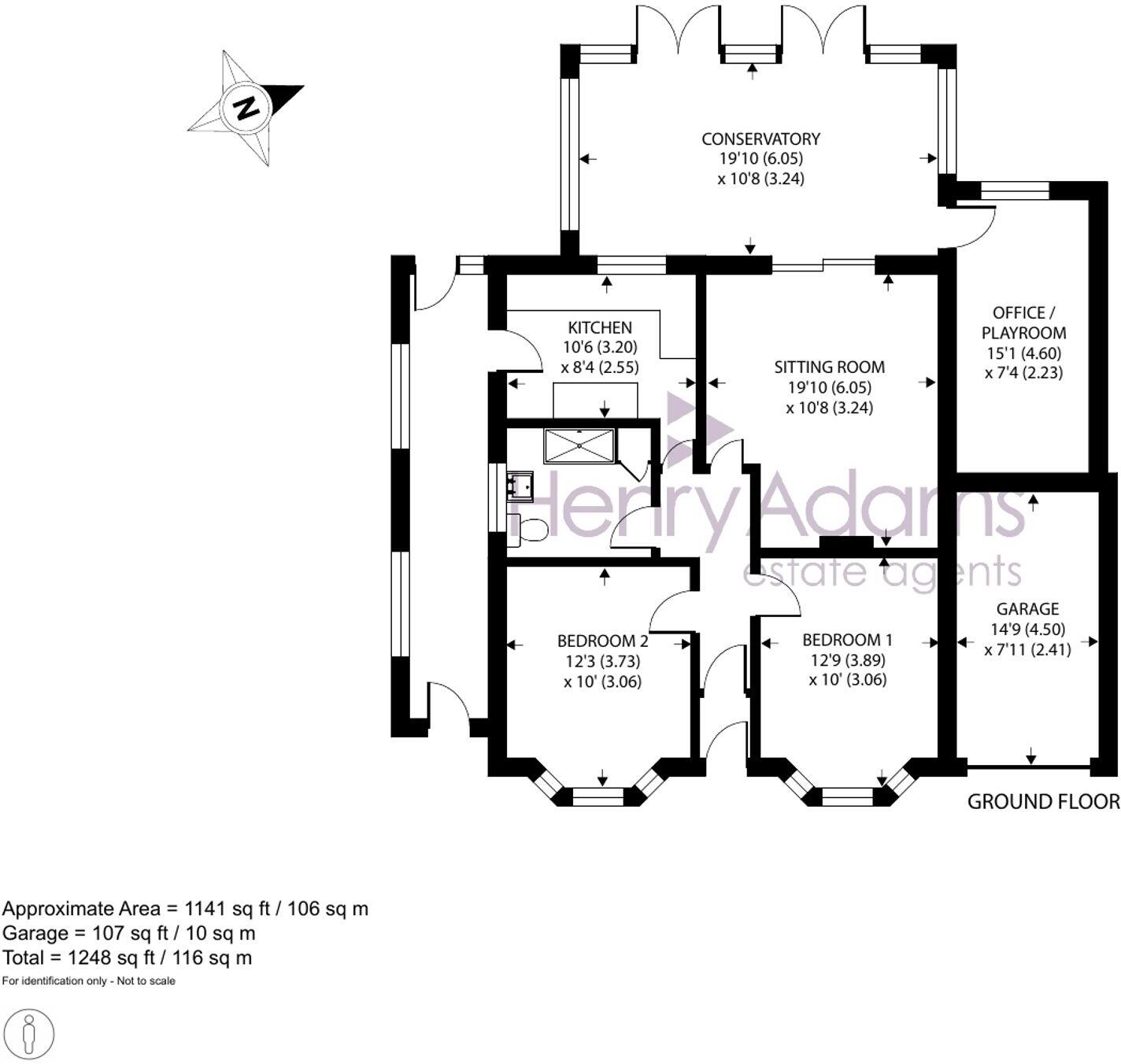
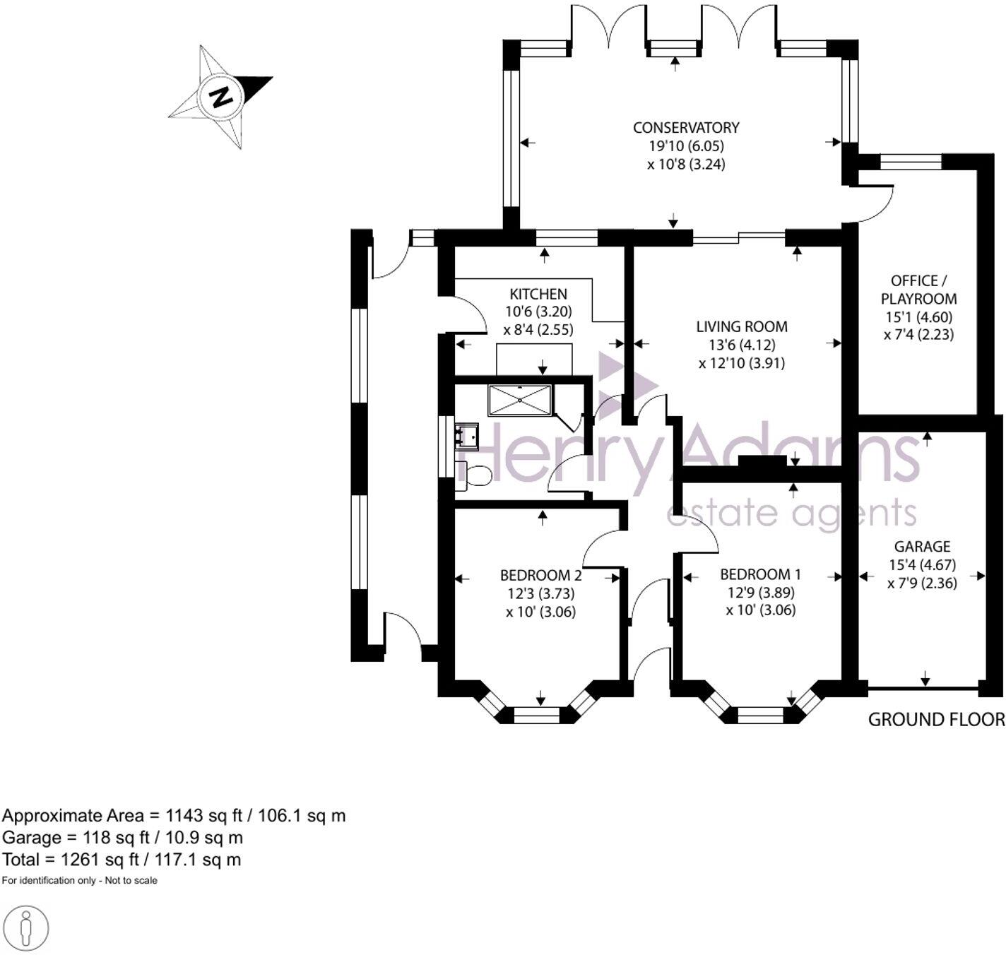
This spacious detached bungalow in Selsey, priced at £325,000, presents a unique opportunity for buyers looking to put their stamp on a property. With two comfortable double bedrooms, a cozy living room flowing into a generous conservatory, and a flexible office or playroom, this home is ready for modernisation, allowing you to enhance its charm. The well-proportioned kitchen includes a handy side lobby for extra storage, making it both functional and inviting.
Set on the eastern side of Selsey, this bungalow boasts an impressive westerly-facing garden, extending approximately 80 feet, perfect for outdoor entertaining or simply enjoying the tranquil surroundings. The property benefits from a driveway and garage, ensuring ample parking space. Located in a quiet neighborhood with easy access to local amenities, schools, and the beach, this residence combines comfort with convenience. Don’t miss the chance to transform this blank canvas into your dream home—opportunities like this are rare and won’t last long!
3 bedroom detached bungalow for sale in York Road, Selsey, PO20 — £350,000 • 3 bed • 1 bath • 990 ft²
2 bedroom detached bungalow for sale in Longacre, Selsey, PO20 — £465,000 • 2 bed • 1 bath • 899 ft²
2 bedroom semi-detached bungalow for sale in Beverley Close, Selsey, PO20 — £315,000 • 2 bed • 1 bath • 732 ft²
2 bedroom detached bungalow for sale in Manor Lane, Selsey, PO20 — £369,500 • 2 bed • 1 bath • 932 ft²
3 bedroom semi-detached bungalow for sale in Manor Lane, Selsey, Chichester, PO20 — £325,000 • 3 bed • 1 bath • 939 ft²
3 bedroom chalet for sale in Woodland Road, Selsey, PO20 — £410,000 • 3 bed • 2 bath • 1336 ft²


















































































