Spacious family home with large garden and driveway in sought-after Teal Farm.
Four bedrooms, master with ensuite shower
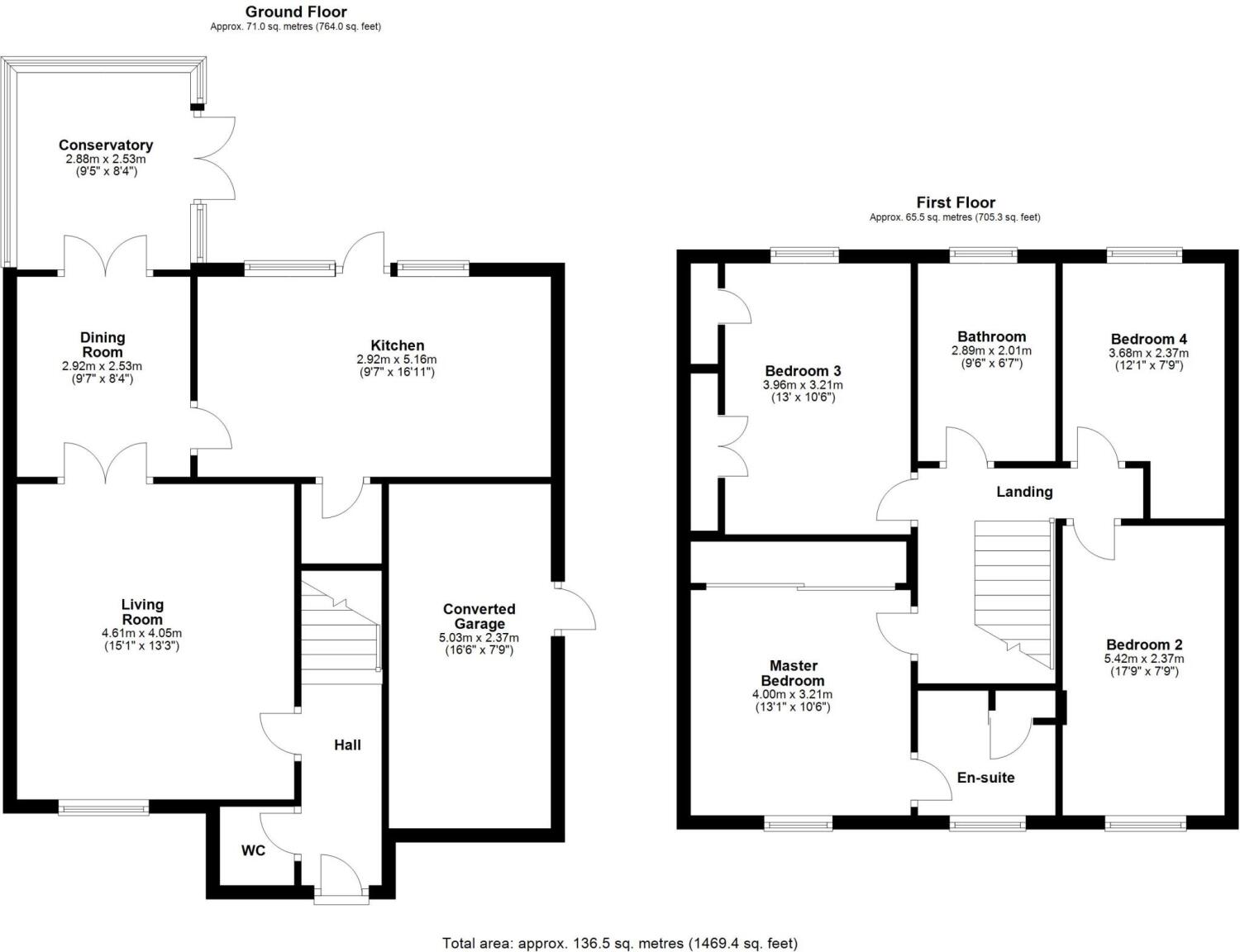
Set on a generous plot in the popular Teal Farm area, this four-bedroom detached home balances period charm with modern family living. The property offers a welcoming main lounge, separate dining room and a bright conservatory that opens onto a well-kept rear garden — a safe space for children and informal entertaining. The fitted kitchen has farmhouse styling, wooden worktops and a large range cooker, making it practical for everyday family life.
Upstairs, the master bedroom includes an ensuite shower and there are three further bedrooms, two with built-in wardrobes. The family bathroom features a freestanding bath and contemporary tiling. A formerly integral garage has been converted to a home office with laminate flooring; this space could be returned to garage use if needed. A wide block-paved driveway provides plentiful off-street parking.
The house is freehold, in a low-crime, very affluent neighbourhood with fast broadband and excellent mobile signal — useful for remote working families. Local amenities, parks and several well-rated secondary schools are within easy reach, although one nearby primary school is currently rated 'Requires Improvement' by Ofsted, which some buyers may wish to consider when planning schooling options.
Overall the home presents as well maintained and immediately liveable, with scope to personalise rooms or reconfigure the garage space to suit changing needs. There is no flood risk and council tax is affordable for the area, making this property a practical choice for families wanting space, convenience and a pleasant suburban setting.
4 bedroom detached house for sale in Lydcott, Teal Farm, Washington, NE38 — £320,000 • 4 bed • 2 bath • 1251 ft²
4 bedroom detached house for sale in Kimberley, Teal Farm, Washington, NE38 — £300,000 • 4 bed • 2 bath • 1141 ft²
4 bedroom detached house for sale in Hebden Court, Washington, Tyne and Wear, NE38 — £455,000 • 4 bed • 3 bath • 1623 ft²
4 bedroom detached house for sale in Capesthorne Road, Teal Farm, Washington, NE38 — £285,000 • 4 bed • 2 bath • 1076 ft²
4 bedroom detached house for sale in Thornbridge, Teal Farm, Washington, Sunderland, NE38 — £325,000 • 4 bed • 1 bath
5 bedroom detached house for sale in Lydcott, Washington, Tyne and Wear, NE38 — £375,000 • 5 bed • 3 bath • 1955 ft²














































































