High-spec city house with approved extension potential for added value.
Chain free freehold mid-terrace in North Laine
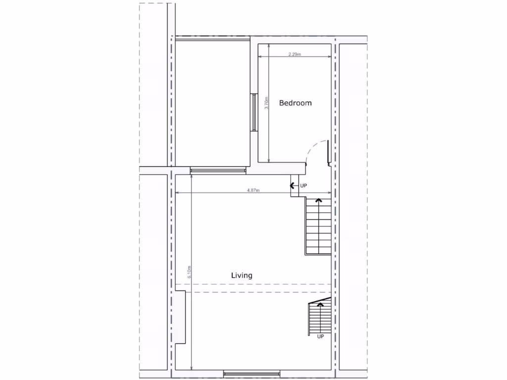
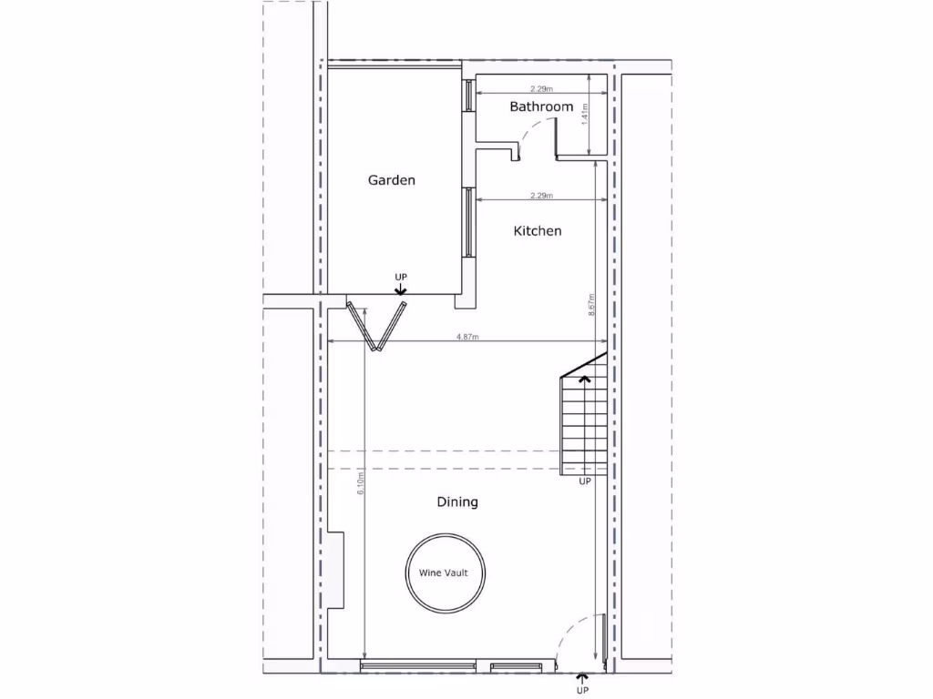
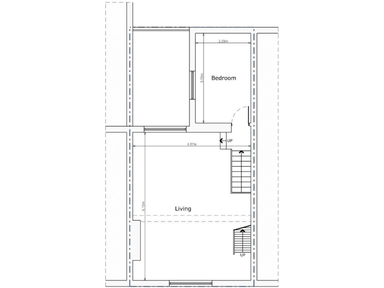
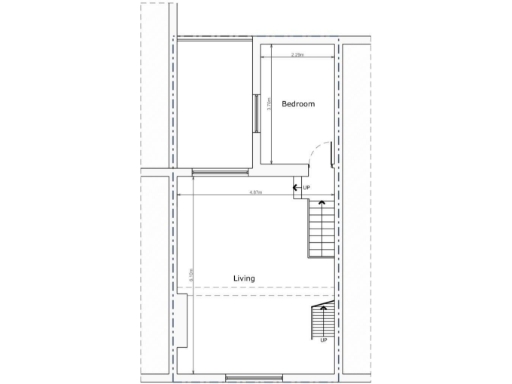
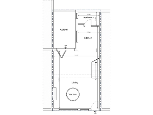
Located in Brighton’s vibrant North Laine, this three-bedroom mid-terrace combines high-spec contemporary refurbishments with planning permission to extend. Rebuilt in 2015 and recently refreshed, the house offers a bespoke kitchen, underfloor heating, integrated smart systems and a compact south-facing courtyard — attractive features for short-let operators or buyers seeking central convenience.
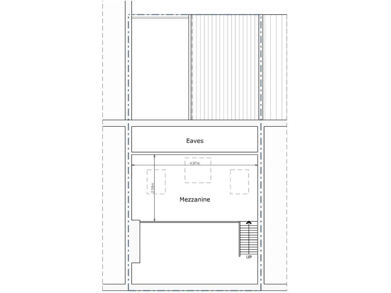
Planning permission has been granted to add an extra storey, increasing internal area by about 50% to create a large family bathroom and an additional double bedroom. That approved uplift represents clear potential to boost both living space and future value in a conservation area where development opportunities are scarce.
Practical considerations are direct: the overall internal footprint is small (410 sq ft) with a very small external plot, broadband speeds are slow, and the surrounding area records higher crime rates than average. The property has performed as a holiday let with documented income, but purchasers should factor in the local market dynamics and operational requirements for continued short-let use.
Sold freehold and chain free, the home suits an investor seeking a central Brighton income unit with development upside, or a buyer wanting a cleverly arranged, high-spec city house with staged extension potential. The finish is contemporary and ready to occupy, but scope remains to increase space and long-term value via the approved additional storey.
3 bedroom terraced house for sale in Portland Street, Brighton, BN1 — £475,000 • 3 bed • 1 bath • 826 ft²
2 bedroom terraced house for sale in Queens Gardens, North Laine, Brighton, BN1 — £550,000 • 2 bed • 1 bath • 775 ft²
3 bedroom terraced house for sale in Robert Street, Brighton, East Sussex, BN1 — £550,000 • 3 bed • 1 bath • 958 ft²
4 bedroom terraced house for sale in Robert Street, Brighton, East Sussex, BN1 — £725,000 • 4 bed • 1 bath • 1048 ft²
3 bedroom terraced house for sale in Tidy Street, Brighton, BN1 — £650,000 • 3 bed • 2 bath • 684 ft²
2 bedroom terraced house for sale in Cheltenham Place, Brighton, BN1 — £500,000 • 2 bed • 1 bath • 969 ft²






































































































































