Spacious family home with outbuilding potential and wide field views.
Extended 1921 cottage with period features and exposed beams
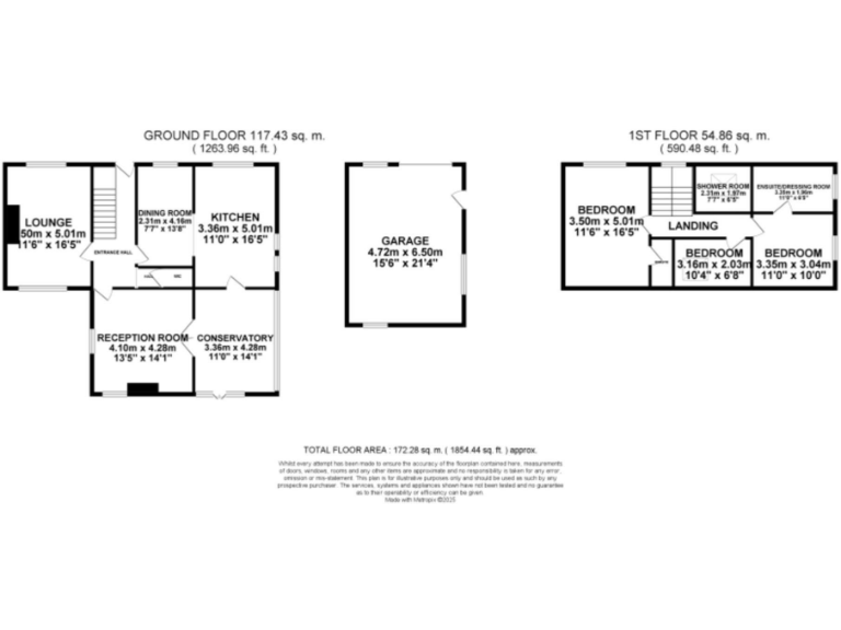
Very large overall size — 1,854 sq ft, generous room proportions
Three bedrooms, two en suite; principal bedroom very spacious
South-facing garden backing onto open fields with countryside views
Detached outbuilding/workshop previously plumbed for annexe conversion
Garage parking on-site; freehold tenure and affordable council tax
Very slow broadband speeds; average mobile signal — connectivity limited
Semi-rural village location; local amenities limited, nearest town nearby
Cleaver Cottages is an extended 1921 cottage that now offers generous family accommodation across an unusually large footprint. The house combines period character—exposed beams and a wood-burning stove—with practical modern additions, including a country-style kitchen with integrated appliances, a conservatory and two en suite facilities. Set on an end plot, the south-facing garden adjoins open fields, giving wide, uninterrupted views and a strong sense of privacy.
The layout works well for family life and multi-generation use: a very large principal bedroom with en suite, a second bedroom with dressing room and en suite, a third bedroom, plus flexible reception rooms including a snug and conservatory. A detached outbuilding currently used as a workshop/studio was once plumbed for an annexe and offers clear potential for conversion subject to consents and updating.
Practical considerations are straightforward: the property is freehold, has garage parking, low flood risk and affordable council tax. Broadband speeds are very slow and mobile signal is average, reflecting the semi‑rural location; buyers who work from home should factor in connectivity upgrades. The house has been significantly extended by the current owners, but older properties of this age may still require ongoing maintenance and careful inspection before purchase.
This home will suit buyers seeking country character within easy reach of local schools and nearby Formby amenities — families who want space, garden outlook and flexible accommodation with scope to personalise the outbuilding or finish any cosmetic updating.
3 bedroom semi-detached house for sale in Lord Sefton Way, Great Altcar, Liverpool, L37 — £300,000 • 3 bed • 1 bath • 928 ft²
2 bedroom cottage for sale in Four Lane Ends, Bickerstaffe, L39 — £300,000 • 2 bed • 1 bath • 1484 ft²
3 bedroom cottage for sale in Brickwall Green, Liverpool, Merseyside, L29 — £400,000 • 3 bed • 3 bath • 1617 ft²
3 bedroom cottage for sale in Elmers Green, Skelmersdale, WN8 — £515,000 • 3 bed • 2 bath • 1560 ft²
3 bedroom detached house for sale in Carr House Lane, Liverpool, L38 — £645,000 • 3 bed • 1 bath • 1859 ft²
3 bedroom semi-detached house for sale in Barrow Nook Lane, Bickerstaffe, L39 — £360,000 • 3 bed • 1 bath • 1036 ft²


































































































































































