Handsome former chapel with flexible layout and conversion potential.
- Victorian former chapel/assembly hall with high ceilings and character
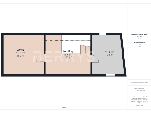
- Gross internal area 1,556 sq ft (144.53 sq m)
- Vacant possession available immediately
- Potential for residential conversion subject to planning (STPP)
- No private garden; external space limited to forecourt/pavement
- Tenure not stated; buyers must verify legal status
- Condition not fully assessed; refurbishment likely required
- Excellent mobile signal and fast broadband in affluent town centre
This distinctive Victorian former chapel/assembly hall offers 1,556 sq ft of flexible space in a prominent Towcester town-centre position. The double-height principal hall, large sash-style windows and mezzanine create dramatic interior volume suitable for offices, studios, retail or community use. The building is neutrally presented and available with vacant possession, ready for immediate occupation or reconfiguration.
The property is attractive to an investor or developer seeking conversion potential: residential conversion is possible subject to planning permission (STPP). The layout already provides a mix of open-plan and cellular rooms across two floors plus ancillary WCs and a kitchen, reducing initial subdivision work for many commercial or community uses. Services like excellent mobile signal and fast broadband support modern occupiers.
Be clear on the main constraints. There is no private garden and external space is limited to pavement/forecourt; the plot is small. Residential conversion would require a formal planning application and compliance with building regulations. The legal tenure is not stated, and the internal condition cannot be fully assessed from the information supplied, so buyers should budget for investigation and likely refurbishment works.
Priced at £325,000, the building suits an owner-occupier business, a local professional practice, a leisure/fitness studio, or an investor/developer preparing a planning-led residential conversion. Vacant possession and a central location close to local amenities and schools make it straightforward to inspect and progress planning or fit-out decisions.
Office for sale in Brackley Road, Towcester, Northamptonshire, NN12 — £325,000 • 1 bed • 1 bath • 1556 ft²
Office for sale in 167, Watling Street West, Towcester, Northamptonshire, NN12 6BX, NN12 — £550,000 • 1 bed • 1 bath • 2249 ft²
Commercial development for sale in 42-44 Henry Street, Northampton, Northamptonshire, NN1 — £600,000 • 1 bed • 1 bath • 10141 ft²
Commercial development for sale in Former Ridgeway House, 1 Swinneyford Road, Towcester, Northamptonshire, NN12 — £750,000 • 1 bed • 1 bath • 14867 ft²
Light industrial facility for sale in Brackley Road, Towcester, Northamptonshire, NN12 — £250,000 • 1 bed • 1 bath • 2077 ft²
Light industrial facility for sale in Clare Street, Northampton, Northamptonshire, NN1 — £300,000 • 1 bed • 2 bath • 3302 ft²


























