Modern family home with garden, garage and a £5,000 gifted deposit incentive.
Brand-new three-bedroom semi-detached house (ready summer 2025)
A brand-new three-bedroom semi-detached home ready summer 2025, set on a decent plot in Laceby with front and rear gardens, single garage and driveway. Built to modern standards, the house includes underfloor heating to the ground floor, double glazing, car charger provision (power ready), and a 10-year architect warranty (Tim Clark), offering low-maintenance living for a growing household.
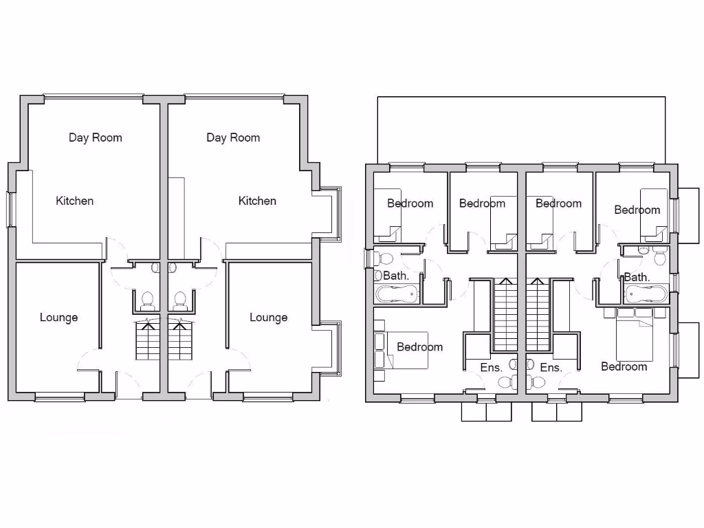
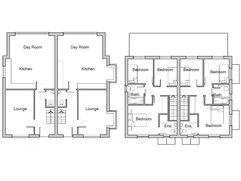
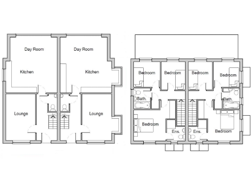
The ground floor plan gives practical family space: entrance hall, cloakroom/WC, lounge, a fitted dining kitchen and adjoining day room. Upstairs there are three bedrooms with the master served by an en suite shower room plus a family bathroom. At about 792 sq ft the layout is efficient but compact — suitable for families wanting a modern, low-upkeep home rather than expansive internal living space.
Buyers should note the property is currently under construction and the developer reserves the right to amend specification or layout prior to exchange. Kitchen appliances are excluded (PC allowance £5,000), and some finishes are indicative in marketing images. Council tax band and EPC are not yet set. Local crime levels are reported above average for the area; broadband and mobile signal are strong, and the village benefits from good schools and easy access to transport links.
A £5,000 gifted deposit is available on full asking-price offers, which helps first-time buyers or those downsizing secure the property. Overall this is a contemporary, well-specified new build aimed at buyers looking for a practical family home in a prospering village setting, with the reassurance of new-build warranties and recent construction standards.
3 bedroom semi-detached house for sale in Plot 123, 1 Perring Grove, Off Field Head Road, Laceby, DN37 — £245,000 • 3 bed • 2 bath • 1217 ft²
3 bedroom semi-detached house for sale in Plot 136, 11 Field Head Road, Laceby, DN37 — £220,000 • 3 bed • 1 bath • 1012 ft²
3 bedroom semi-detached house for sale in Plot 120, 10 Hewitt Gardens, Off Field Head Road, Laceby, DN37 — £245,000 • 3 bed • 2 bath • 792 ft²
3 bedroom semi-detached house for sale in Plot 139, Off Field Head Road, Laceby, DN37 — £225,000 • 3 bed • 1 bath • 1012 ft²
3 bedroom semi-detached house for sale in Plot 138, 15 Field Head Road, Laceby, DN37 — £225,000 • 3 bed • 1 bath • 1012 ft²
3 bedroom semi-detached house for sale in Plot 91, 19 Twidale Lane, off Field Head, Laceby, Grimsby, DN37 — £245,000 • 3 bed • 2 bath • 795 ft²


























