Compact, bright one-bed close to Queens Park station and Victoria Road shops.
Top-floor red sandstone tenement with traditional Victorian character
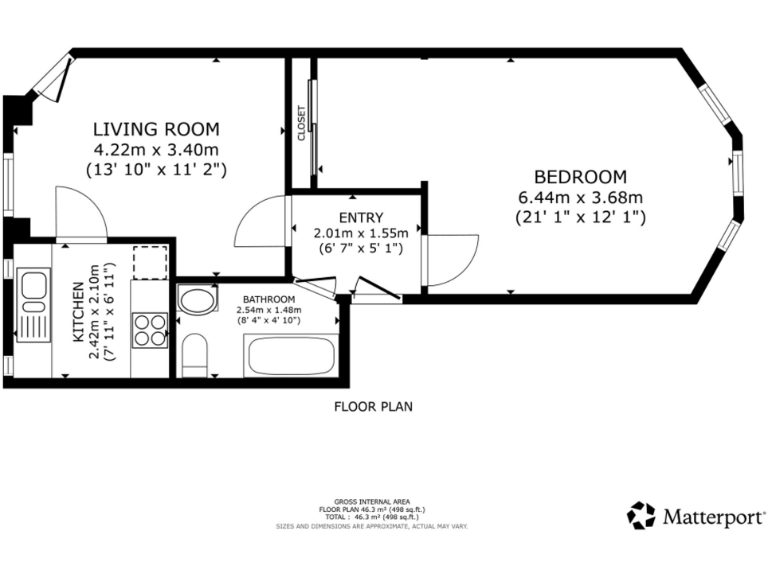
Set on the top floor of a red sandstone tenement, this one-bedroom flat offers bright rooms, high ceilings and bay-windowed bedroom space. The apartment benefits from a secure entrance, well-presented communal halls and a rear communal lawn with drying area.
At about 495 sq ft the layout includes an entrance hall, bathroom with shower-over-bath, a bedroom with a dedicated home-office nook and a living room opening to a modern-fitted kitchen. Fast broadband and excellent mobile signal make the home well suited to remote working or streaming. The property is freehold and carries an EPC rating of C.
This home will suit first-time buyers or investors seeking a manageable flat in a popular South Side location close to Queens Park rail station and Victoria Road amenities. Note the building shows traditional Victorian character but some elements are dated internally and there are reported roof issues on the block — these may need inspection and potential expenditure. The surrounding area has very high deprivation metrics, which can affect resale pace and tenant demand in some segments.
Overall this is a characterful, compact apartment with clear modernising potential and sensible running costs (low council tax). Buyers should budget for cosmetic updating and confirm any communal maintenance liabilities prior to purchase.
1 bedroom flat for sale in 59 Torrisdale Street, Flat 0/1, Queens Park, Glasgow, G42 8PW, G42 — £89,000 • 1 bed • 1 bath • 452 ft²
1 bedroom apartment for sale in Torrisdale Street, Queen's Park, Glasgow, G42 — £135,000 • 1 bed • 1 bath • 463 ft²
1 bedroom apartment for sale in Cumming Drive, Mount Florida, Glasgow, G42 — £120,000 • 1 bed • 1 bath • 455 ft²
1 bedroom flat for sale in Pollokshaws Road, Glasgow, Glasgow City, G41 — £130,000 • 1 bed • 1 bath • 496 ft²
1 bedroom flat for sale in Torrisdale Street, Queens Park, GLASGOW, G42 — £118,000 • 1 bed • 1 bath • 549 ft²
1 bedroom flat for sale in Prince Edward Street, Glasgow, G42 — £150,000 • 1 bed • 1 bath • 668 ft²














































































