**Standout Features:**
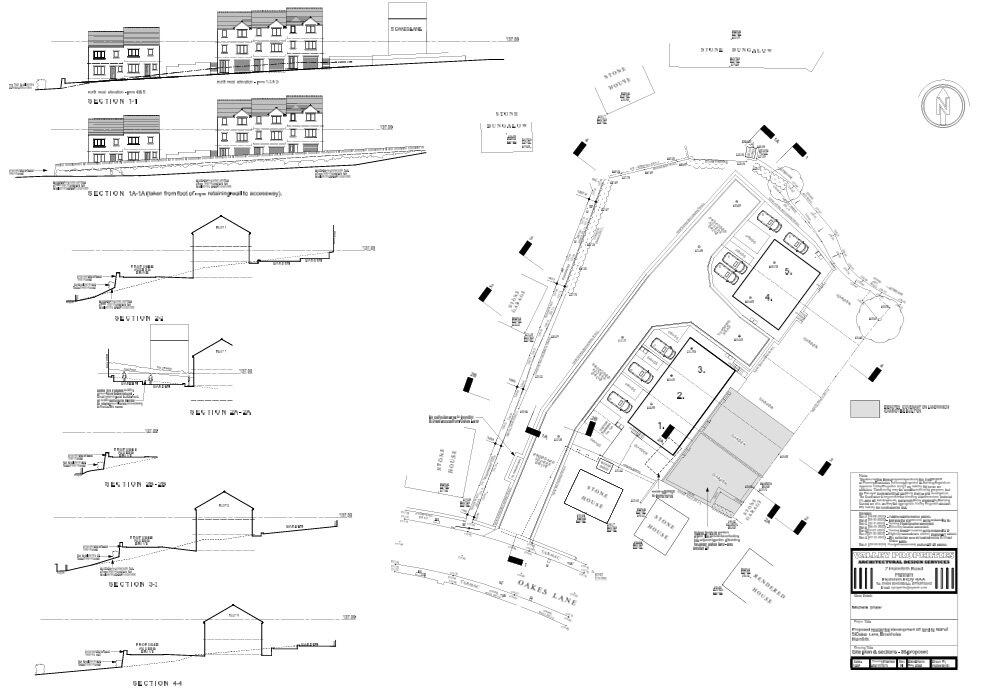
- Detached stone-built house on an expansive 0.71-acre plot.
- Approved planning permission for 5 additional houses: 2 semi-detached homes and 3 three-story townhouses.
- Located in a sought-after village setting with low crime rates and fast broadband.
- Proximity to outstanding local schools and village amenities.
- Needs renovation, providing potential for customization.
**Summary:**
Discover a remarkable opportunity with this detached stone house set on a spacious 0.71-acre plot, nestled in a desirable village location. Currently a three-bedroom dwelling, it offers substantial renovation potential while also boasting approved planning permission for the construction of five additional residential units—a lucrative chance for investors or developers. The property features ample outdoor space, perfect for creating gardens or recreational areas, making it also suitable for families looking to expand.
Situated in a charming community with low crime rates and excellent schools nearby, this home presents a unique blend of comfort and growth potential. While the existing house may require modernization, the expansive lot is ripe for development, allowing you to capitalize on the area's demand for housing. Don’t miss this exclusive chance to acquire a property with immense future possibilities—ideal for both investors and families keen on making their mark in a picturesque village setting.
4 bedroom detached house for sale in Mount Pleasant Lane, Fenay Bridge, HD8 — £400,000 • 4 bed • 2 bath • 1163 ft²
3 bedroom country house for sale in Fernside Avenue, Almondbury, Huddersfield, HD5 — £150,000 • 3 bed • 1 bath • 567 ft²
3 bedroom semi-detached house for sale in Quarryhouse, Station Road, Skelmanthorpe, HD8 — £200,000 • 3 bed • 1 bath • 1098 ft²
Land for sale in Development Site, Huddersfield Road, Elland, HX5 — £750,000 • 6 bed • 3 bath • 4865 ft²
3 bedroom semi-detached house for sale in Gate Foot Lane, Shepley, Huddersfield, HD8 — £450,000 • 3 bed • 1 bath • 1668 ft²
Plot for sale in Birkby Lodge Road, Edgerton, Huddersfield, West Yorkshire, HD2 2BG, HD2 — £400,000 • 1 bed • 1 bath • 831 ft²














































































