**Standout Features:**
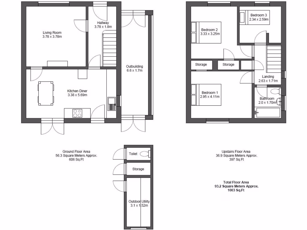
- 1003 square feet of living space
- Three spacious double bedrooms
- Over 100ft rear garden with extension potential (subject to planning permission)
- Private driveway for off-road parking
- Stunning modern kitchen with contemporary finish
- Open-plan living and dining area
- Chain-free sale for a smoother process
- Close to local schools and amenities
**Property Summary:**
Discover a beautifully presented three-bedroom semi-detached home nestled on the tranquil Hawthorne Avenue in Rainham. Spanning 1003 square feet, this property offers an ideal combination of spacious living and modern design, featuring a stunning contemporary kitchen and a bright, open-plan living and dining area perfect for family gatherings or entertaining friends. The three generously-sized bedrooms provide plenty of room for relaxation and productivity.
Step outside to enjoy a sizable 100ft+ rear garden, perfect for outdoor living or children's play, with the added advantage of potential for extension to enhance the home further (subject to planning permissions). The private driveway ensures convenient off-road parking.
With a chain-free sale, transitioning into your new home will be quick and simple. The location is a family-friendly haven, within walking distance of highly regarded local schools and close to a range of shops and amenities, ensuring comfort and convenience every day. Whether you're a first-time buyer, a family seeking space and comfort, or an investor looking for rental potential, this property meets your needs in a desirable area. Seize the opportunity to make this exceptional home yours today!
3 bedroom semi-detached house for sale in Ploughmans Way, Rainham, Gillingham, Kent, ME8 — £350,000 • 3 bed • 2 bath • 954 ft²
3 bedroom terraced house for sale in Ploughmans Way, Rainham, Gillingham, Kent, ME8 — £320,000 • 3 bed • 1 bath • 744 ft²
3 bedroom terraced house for sale in Oastview, Rainham, Gillingham, Kent, ME8 — £370,000 • 3 bed • 1 bath • 1370 ft²
3 bedroom house for sale in Moor Park Close, Rainham, Gillingham, Kent, ME8 — £300,000 • 3 bed • 1 bath • 976 ft²
3 bedroom semi-detached house for sale in Caldew Avenue, Gillingham, Kent, ME8 — £375,000 • 3 bed • 1 bath • 786 ft²
3 bedroom semi-detached house for sale in Broadview Avenue, Rainham, ME8 — £400,000 • 3 bed • 1 bath • 854 ft²


































































