Established equestrian holding with holiday-let income, pool and extensive facilities in the New Forest..
12.87 acres with paddocks, woodland, lake and mature gardens
12-stable livery, tack room, rug and feed stores on-site
50m x 30m sand-and-rubber menage; loose boxes and open barn
Two income-producing holiday lets (shepherd hut and woodland lodge)
Heated outdoor pool with pump room and separate bar/social room
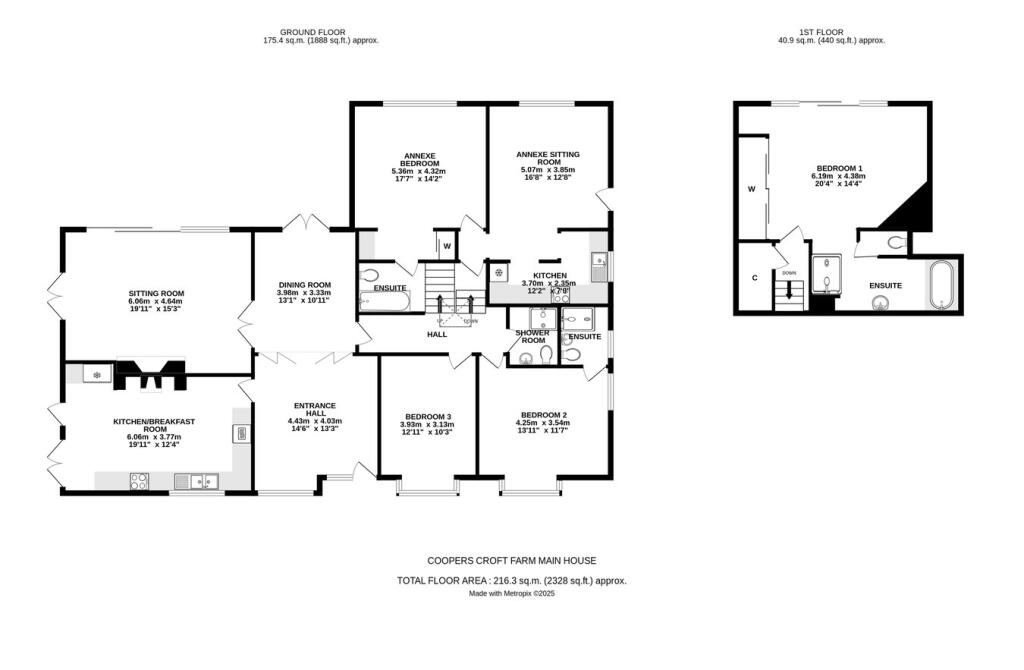
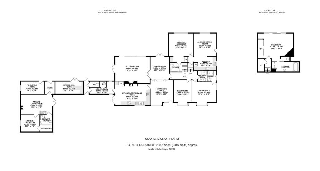
Main house plus two self-contained annexes totalling ~3,000 sq ft
EPC rating E and Council Tax Band G — higher running costs
Additional c.6.3 acres available by separate negotiation
Coopers Croft Farm is a substantial, well-equipped equestrian holding set in approximately 12.87 acres on the southern edge of the New Forest National Park. The single-storey main house (part bungalow style) with two self-contained annexes totals just over 3,000 sq ft and sits within mature grounds, paddocks and woodland. Practical yard space, parking for many vehicles, a barn, outbuildings and a 12-stable livery make this a turnkey proposition for riding owners or smallholders.
The site already generates short-let income from a shepherd hut and a woodland lodge, both with hot tubs, and benefits from a heated outdoor pool with pump room and a bar/social room. The equestrian infrastructure is strong: tack and feed stores, rug room, loose boxes and a 50m x 30m sand-and-rubber menage with good fencing and shelters. There is scope to increase grazing via a separate negotiation for a further c.6.3 acres.
Buyers should note practical considerations: the EPC rating is E and council tax band G, reflecting higher running costs; the property lies within a National Park where alterations are more strictly controlled. The large plot and existing buildings offer clear potential for improvement, conversion or enhanced holiday-let income subject to planning and National Park consent.
This property will suit purchasers seeking an established equestrian base with holiday-let income potential and substantial garden and amenity land. It offers privacy, immediate useable facilities and strategic location—approximately 10 minutes to Lymington and village amenities in Sway—while being just a short ride from open forest.
Equestrian facility for sale in Fairlight Lane, Tiptoe, Lymington, Hampshire, SO41 — £1,250,000 • 5 bed • 2 bath • 2389 ft²
9 bedroom country house for sale in Flexford Lane, Sway, New Forest, SO41 — £3,000,000 • 9 bed • 8 bath • 2002 ft²
3 bedroom detached house for sale in Ossemsley, Christchurch, Hampshire, BH23 — £1,350,000 • 3 bed • 3 bath • 2544 ft²
Commercial property for sale in Hazelhurst Farm, Sway, New Forest, SO41 — £3,000,000 • 1 bed • 1 bath • 10000 ft²
3 bedroom detached house for sale in Ossemsley, Christchurch, BH23 — £1,350,000 • 3 bed • 2 bath • 5098 ft²
Equestrian facility for sale in Linnies Lane, Sway, Lymington, Hampshire, SO41 — £1,450,000 • 4 bed • 2 bath • 2664 ft²


















































































































































































































