Ready-to-move-in home with parking and nearby excellent schools.
Two double bedrooms with family bathroom upstairs
Modern build (2023) with EPC rating B and mains gas
Compact interior — approx. 604 sq ft, limited storage
Small rear garden; off-street parking to front
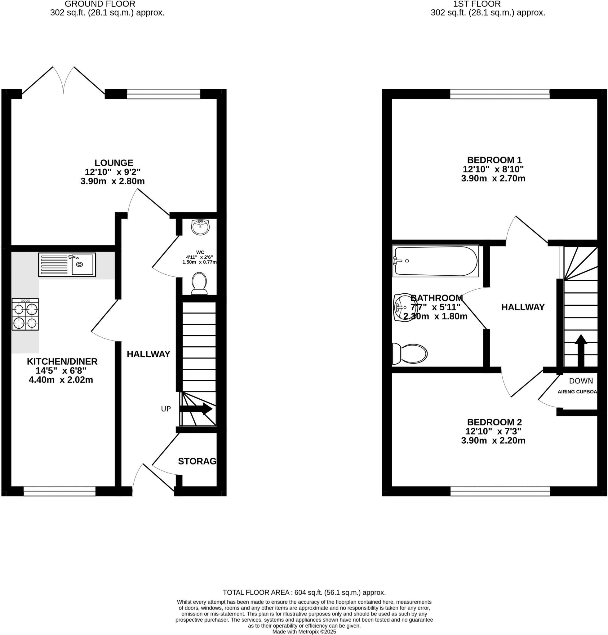
Ground-floor WC and open kitchen/diner layout
Close to Good and Outstanding local schools and leisure
Area noted as ‘constrained renters’ — may affect rental pool
Very affordable running costs; low council tax and upkeep
This recently-built two-bedroom mid-terrace (constructed 2023) offers modern, low-maintenance living in a sought-after Scunthorpe location. The ground floor layout includes a kitchen/diner, lounge and convenient WC; upstairs are two double bedrooms and a family bathroom. With gas central heating, an EPC rating of B and mains connections, it’s ready for immediate occupation or letting.
Externally the property benefits from a small rear lawned garden and off-street parking to the front — practical assets on a compact plot. Local schooling is strong, with several Ofsted-rated Good and Outstanding primary and secondary options nearby, and local leisure and playground facilities within easy reach.
Notable considerations: the overall internal size is small (approximately 604 sq ft) and the plot is compact, so storage and garden space are limited. The wider area is classified as “constrained renters” despite very affluent area indicators; this may affect long-term rental demand or resale dynamics for some buyers. Council tax and running costs are described as cheap, which supports affordability.
2 bedroom end of terrace house for sale in Greenshank Drive, Scunthorpe, DN16 — £159,950 • 2 bed • 1 bath • 646 ft²
2 bedroom end of terrace house for sale in Bluebell Close, Scunthorpe, DN15 — £115,000 • 2 bed • 1 bath • 598 ft²
2 bedroom end of terrace house for sale in Briar Way, Scunthorpe, Lincolnshire, DN15 — £130,000 • 2 bed • 1 bath • 544 ft²
3 bedroom end of terrace house for sale in Bunting Mews, Scunthorpe, DN16 — £185,000 • 3 bed • 1 bath • 850 ft²
2 bedroom terraced house for sale in Grebe Mews, Scunthorpe, DN16 — £128,000 • 2 bed • 1 bath • 528 ft²
3 bedroom semi-detached house for sale in Oakwell Close, SCUNTHORPE, DN16 — £160,000 • 3 bed • 1 bath • 591 ft²






















































