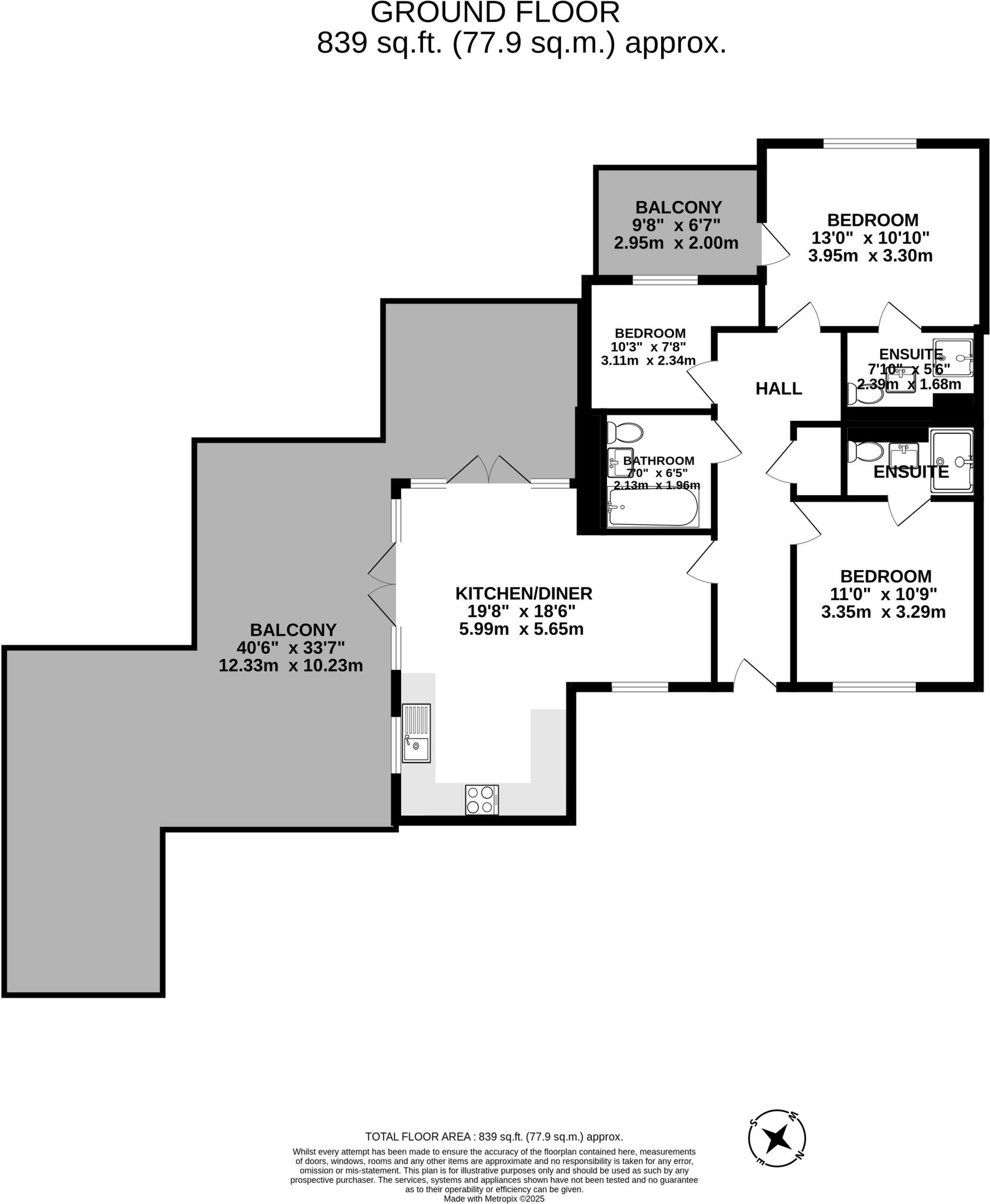
**Standout Features:**
- Stunning 3-bedroom penthouse with expansive wraparound terrace
- Private master suite with en-suite bathroom and exclusive balcony
- Open-plan living area with high-spec kitchen and integrated appliances
- Move-in ready condition, immaculately presented throughout
- Lift access and concierge services for convenience
- Prime location in a multicultural, cosmopolitan student neighborhood with amenities nearby
- Excellent mobile signal and fast broadband speeds
**Notable Concerns:**
- Leasehold tenure may require future considerations
- Local area classified as deprived—potential impact on resale value
Experience elevated urban living in this breathtaking 3-bedroom penthouse, perfectly positioned in a vibrant city center. The standout feature is the spacious wraparound balcony, offering stunning panoramic views that create an exceptional outdoor living space perfect for entertaining or relaxing in peace. A private master suite completes this luxurious haven, complemented by a sleek, modern kitchen and open-plan living area flooded with natural light.
With lift access and secure concierge services, comfort and convenience are paramount in this move-in ready home. Set in a thriving student neighborhood, you'll enjoy all local amenities—from cafes and dining to theaters and parks—all just a stroll away. While the leasehold status and local area classification may warrant some consideration for future investments, the rental potential in this desirable location makes it an appealing choice for families, investors, or first-time buyers. Don't miss out on the opportunity to own this exclusive slice of city living!
3 bedroom penthouse for sale in Brook Street, Liverpool, Merseyside, L3 — £700,000 • 3 bed • 2 bath • 1582 ft²
3 bedroom apartment for sale in 21 Colquitt Street, Liverpool, L1 — £599,999 • 3 bed • 2 bath • 1264 ft²
3 bedroom apartment for sale in Mann Island, Liverpool, L3 — £525,000 • 3 bed • 2 bath • 1155 ft²
3 bedroom penthouse for sale in Three Bedroom Penthouse, Colquitt Street, L1 — £495,000 • 3 bed • 3 bath • 1299 ft²
3 bedroom penthouse for sale in West Tower, 8 Brook Street, Liverpool, Merseyside, L3 — £1,750,000 • 3 bed • 2 bath
3 bedroom penthouse for sale in William Jessop Way, Liverpool, Merseyside, L3 — £500,000 • 3 bed • 2 bath • 1486 ft²














































































