Spacious period home with garden access near parks and university.
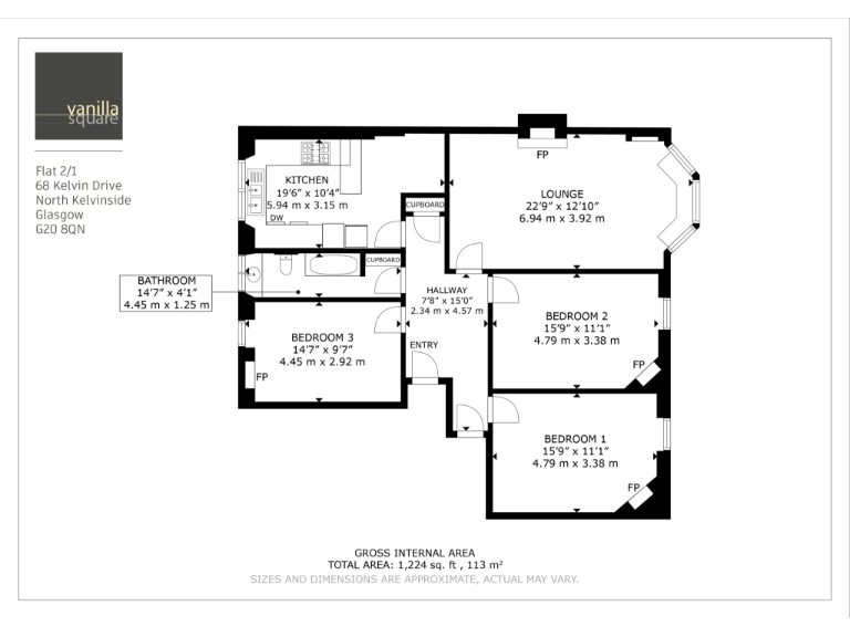
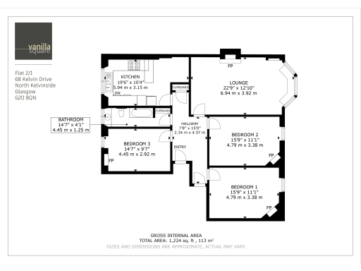
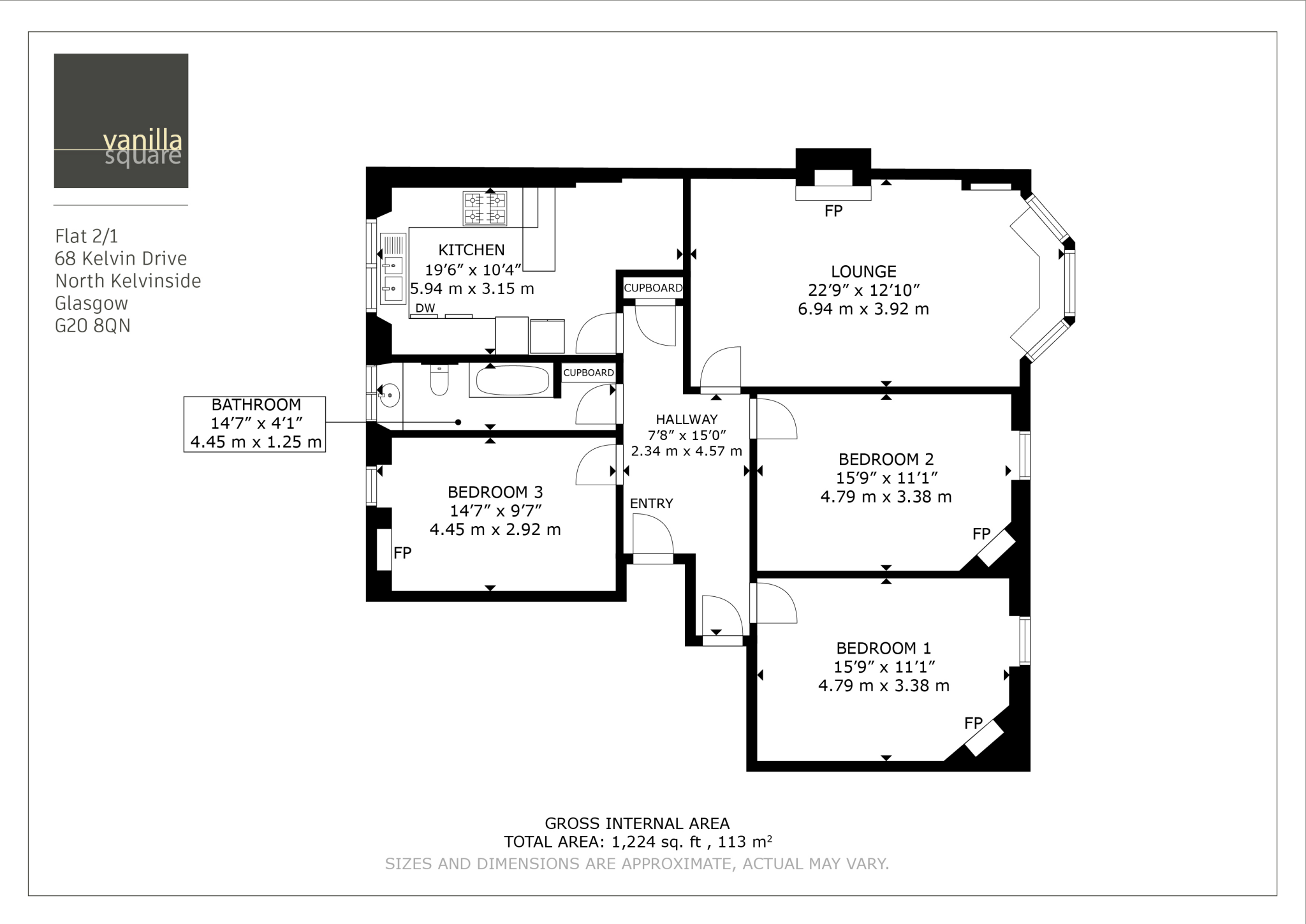
Freehold three-bedroom flat in red sandstone tenement
Set on the second floor of a handsome red sandstone tenement, this three-bedroom freehold flat combines generous proportions and authentic Victorian detail with practical modern updates. A grand bay-windowed living room with original wooden flooring, ornate cornicing and a feature fireplace creates an elegant family reception space, while a spacious dining kitchen with integrated hob, wooden worktops and a breakfast bar suits everyday life and entertaining.
All three bedrooms are comfortable doubles, two retaining original fireplaces, and a large entrance hallway provides built-in storage. Gas central heating and an updated bathroom with an over-bath electric shower keep the home ready to move into. Attractive communal gardens to the rear are maintained by a factor, offering private outdoor space in this leafy West End pocket.
Practical points to note: the flat sits on the second floor (no lift), there is a single bathroom for three bedrooms, and parking is on-street by permit through Glasgow City Council. The property has an EER band D and, while beautifully presented, communal areas and garden maintenance are managed by an appointed factor which will involve service arrangements and costs. The location sits between the River Kelvin and Great Western Road, within easy walking distance of university, parks and the amenities of Byres Road and Botanic Gardens.
2 bedroom flat for sale in Mingarry Street, North Kelvinside, G20 — £249,000 • 2 bed • 1 bath • 928 ft²
3 bedroom ground floor flat for sale in Main Door 154 Wilton Street, North Kelvinside, G20 6BS, G20 — £440,000 • 3 bed • 1 bath • 1604 ft²
3 bedroom flat for sale in Great Western Road, Glasgow, G4 9EG, G4 — £220,000 • 3 bed • 1 bath • 1399 ft²
3 bedroom apartment for sale in Lawrence Street, Dowanhill, Glasgow, G11 — £345,000 • 3 bed • 1 bath • 1112 ft²
1 bedroom apartment for sale in Melrose Gardens, North Kelvinside, Glasgow, G20 — £209,000 • 1 bed • 1 bath • 835 ft²
3 bedroom flat for sale in Penthouse, Queen Margaret Drive, North Kelvinside, G20 — £285,000 • 3 bed • 2 bath • 1150 ft²






























































































































