Roomy three-bed home with off-street parking and garden room.
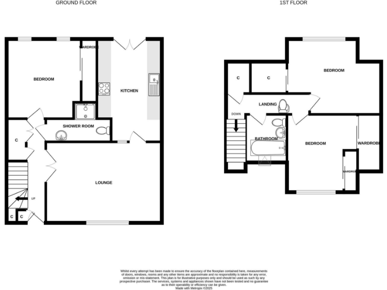
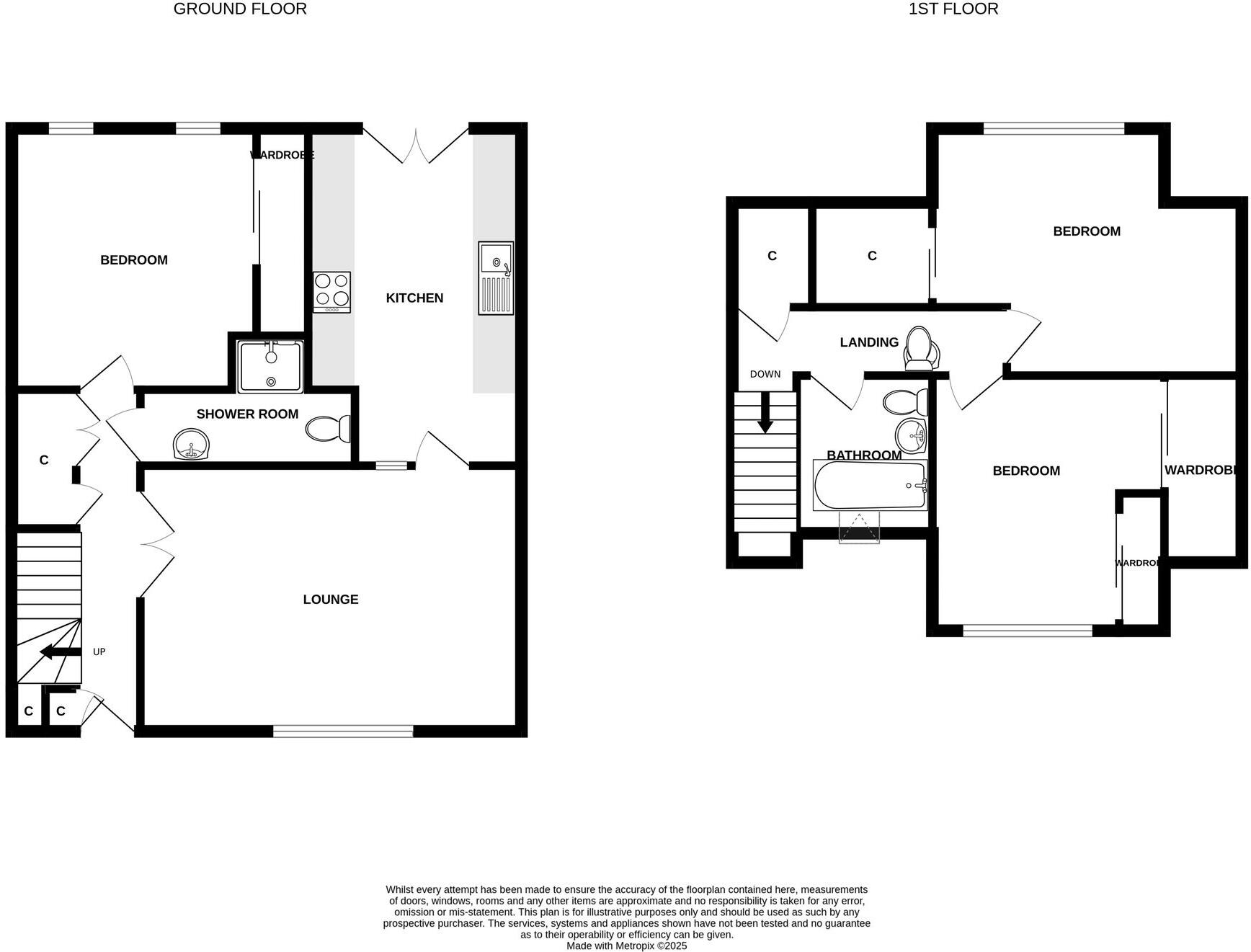
Three double bedrooms across two floors
This mid-terraced, three-bedroom home offers practical family living with off-street parking and an enclosed rear garden with a useful garden room. The bright lounge and separate dining kitchen provide everyday comfort, while two bathrooms (bathroom plus shower-room) suit growing households. Double glazing and gas central heating contribute to warmth and efficiency; the EPC is rated C.
The property sits on a modest plot with a large paved forecourt providing multiple parking spaces—convenient for households with more than one car. Internally the house provides three double bedrooms across an average-sized footprint and standard ceiling heights; room proportions are typical of older terraced cottages. Broadband speeds are fast and mobile signal is excellent.
There is scope to personalise and refresh certain areas: while the dining kitchen is described as modern, other parts of the house may benefit from updating or cosmetic attention. The location is in a very deprived area; buyers should consider local amenities and social context. No flood risk has been identified and the tenure is freehold. This property is suited to families or buyers seeking a straightforward, well-located home with parking and outside space, and potential to add value through selective refurbishment.
4 bedroom cottage for sale in Kidd Street, Kirkcaldy, KY1 — £134,995 • 4 bed • 1 bath • 14015 ft²
3 bedroom end of terrace house for sale in Town Park Way, Glenrothes, KY7 — £199,000 • 3 bed • 1 bath • 883 ft²
2 bedroom detached bungalow for sale in West End, Kinglassie, KY5 — £205,000 • 2 bed • 1 bath • 689 ft²
2 bedroom end of terrace house for sale in 145 Main Street, Townhill, Dunfermline, KY12 0EZ, KY12 — £144,950 • 2 bed • 1 bath • 679 ft²
2 bedroom terraced house for sale in Terrace Street, Dysart, KY1 — £125,000 • 2 bed • 1 bath • 753 ft²
3 bedroom end of terrace house for sale in Frances Path, Glenrothes, KY7 — £105,000 • 3 bed • 2 bath • 947 ft²


















































































