Practical family home with garage, parking and strong connectivity.
Four bedrooms plus converted loft room for flexible use
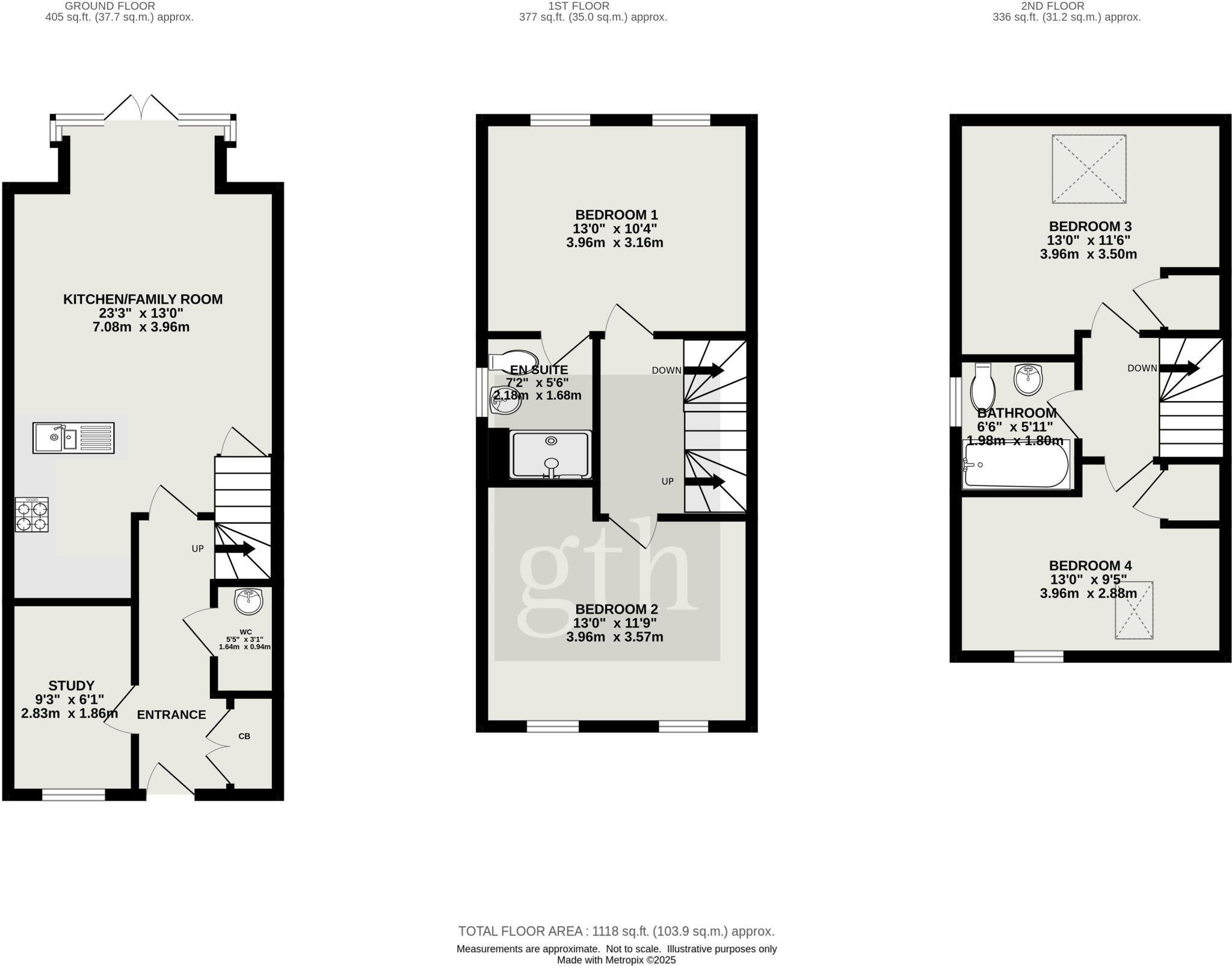
Set over three floors, this four-bedroom end-terrace townhouse offers practical family living with flexible space and no onward chain. The ground floor features an open-plan kitchen/living area with patio doors flooding the space with light, plus a study/play room and cloakroom — useful for busy households. A single garage and dedicated off-street parking sit at the rear, easing everyday parking and storage needs.
Bedrooms are arranged across the first and second floors. The principal bedroom benefits from an en-suite shower room; two second-floor double bedrooms sit either side of the family bathroom and enjoy Velux windows providing added natural light. The converted loft gives extra habitable space suitable for a bedroom, home office or play area, adding versatility for growing families or sharers.
Positioned on a modern development east of Bridgwater, the home is close to local shops, primary schools rated Good and convenient road and rail links including nearby junctions to the M5. Broadband and mobile signal are strong, and council tax is described as affordable, which will suit those needing reliable connections and predictable running costs.
Buyers should note the overall plot and front amenity are small and the property presents an urban, compact garden that is low maintenance rather than expansive. The local area records higher crime levels than average; prospective purchasers may wish to review local crime data and security measures. With straightforward modern finishes and no onward chain, the house will appeal to families seeking practical space and to investors targeting rental demand in Bridgwater.
4 bedroom semi-detached house for sale in Westminster Way, Bridgwater, Somerset, TA6 — £295,000 • 4 bed • 2 bath • 1137 ft²
4 bedroom detached house for sale in Earls Close, Bridgwater, Somerset, TA6 — £315,000 • 4 bed • 2 bath • 882 ft²
4 bedroom terraced house for sale in Somerton Close, Bridgwater, TA6 — £290,000 • 4 bed • 4 bath • 865 ft²
3 bedroom end of terrace house for sale in 1 Ivory Road, Bridgwater, TA6 — £260,000 • 3 bed • 2 bath • 1132 ft²
3 bedroom semi-detached house for sale in Marsa Way, Bridgwater, TA6 — £280,000 • 3 bed • 2 bath • 862 ft²
4 bedroom detached house for sale in 3 Earls Close, Bridgwater, TA6 — £325,000 • 4 bed • 3 bath






















































