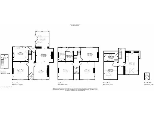
**Standout Features:**
- Five spacious bedrooms with versatile living spaces across three floors.
- Period property with elegant Victorian design, featuring high ceilings and sash windows.
- Impressive open plan lounge diner leading to an orangery with a stylish bar – perfect for entertaining.
- Lounge with dual burner fireplace, ideal for cozy evenings.
- Rear garden equipped with artificial lawn for low maintenance outdoor enjoyment.
- Off-street parking available.
- Leasehold property with Council Tax Band D and an EPC Rating of D.
**Summary:**
Discover this beautifully maintained five-bedroom semi-detached period property in the highly sought-after area of Whelley, Wigan. With spacious living areas spanning three floors, this residence offers a harmonious blend of traditional charm and contemporary living ideal for families or investors. The ground floor boasts a stunning open plan lounge diner that flows elegantly into an orangery, complete with a stylish bar—perfect for gatherings. Relax in the cozy separate lounge featuring a dual burner fireplace, or take advantage of the well-appointed kitchen with ample storage.
Upstairs, you’ll find three generous double bedrooms, a family bathroom, and additional flexible spaces, including a dressing room and office. The second floor hosts two more double bedrooms, including a primary suite with built-in storage and an ensuite shower room. Outside, the front garden invites curb appeal, while the rear garden provides a low-maintenance retreat with artificial grass.
Although the property is on a leasehold basis and has an EPC rating of D, its prime location, historic features, and impressive entertaining spaces guarantee both comfort and future potential. In an area known for low crime rates and surrounded by highly-rated schools, this unique offering is sure to attract discerning buyers looking for an exclusive family home or rental opportunity. Don’t miss out on this rare find!
5 bedroom semi-detached house for sale in Spencer Road, Whitley, Wigan, WN1 2PW, WN1 — £485,950 • 5 bed • 4 bath • 2400 ft²
5 bedroom semi-detached house for sale in Kenyon Road, Swinley, Wigan, WN1 2DU, WN1 — £290,000 • 5 bed • 2 bath • 1241 ft²
2 bedroom semi-detached house for sale in Hornby Street, Swinley, Wigan, WN1 2DR, WN1 — £220,000 • 2 bed • 1 bath • 1095 ft²
3 bedroom semi-detached house for sale in Kenyon Road, Swinley, Wigan, WN1 — £230,000 • 3 bed • 1 bath • 1451 ft²
5 bedroom semi-detached house for sale in Victoria Road, Ashton-In-Makerfield, WN4 — £300,000 • 5 bed • 2 bath • 764 ft²
5 bedroom semi-detached house for sale in St. Helens Road, Leigh, WN7 — £425,000 • 5 bed • 3 bath • 2336 ft²






































































































































