Modern, energy-efficient three-bedroom apartment with parking and balcony.
Third-floor, three-bedroom apartment with private balcony
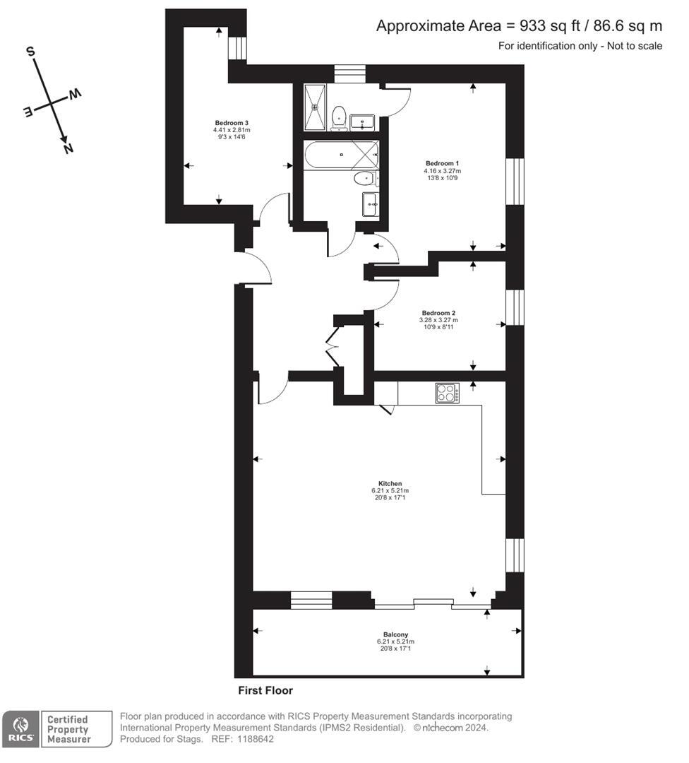
Set on the third floor of a contemporary new development on City Road, this three-bedroom apartment delivers bright, efficient city living across approximately 933 sq ft. The open-plan living room flows to a private balcony, while the master bedroom benefits from an en suite; two further bedrooms and a family bathroom complete a practical layout for a small household or professional sharers.
Built with low-carbon features and modern convenience in mind, the building includes solar panels, an air-source heat pump, underfloor heating and EV charging points. An allocated off-street parking space, lift access to all floors and fast broadband support everyday comfort and connectivity. The property is sold with a 10-year AHCI warranty and an A EPC rating.
Important practical details: the home is leasehold (999 years recorded), with an average service charge of circa £1,200 per year and Council Tax Band E. The local area scores as deprived in wider statistics, and the immediate neighbourhood is classified as “constrained renters,” which may affect long-term capital growth and rental demand. Viewers should also note the property is presented as a new development and will be empty of furnishings on completion.
This apartment will suit buyers seeking a low-maintenance, energy-efficient city base with good transport links and parking. Investors and owner-occupiers should weigh the predictable service costs and local market profile against strong energy credentials and a central Truro location.
3 bedroom apartment for sale in City Road, Truro, TR1 — £460,000 • 3 bed • 2 bath • 977 ft²
3 bedroom apartment for sale in City Road, Truro, TR1 — £435,000 • 3 bed • 2 bath • 933 ft²
3 bedroom apartment for sale in City Road, Truro, TR1 — £470,000 • 3 bed • 2 bath • 977 ft²
2 bedroom apartment for sale in City Road, Truro, TR1 — £399,950 • 2 bed • 1 bath • 746 ft²
2 bedroom apartment for sale in City Road, Truro, TR1 — £390,000 • 2 bed • 1 bath • 746 ft²
2 bedroom flat for sale in Agar Road, Truro, Cornwall, TR1 — £195,000 • 2 bed • 1 bath • 672 ft²


























































