CO6 3LJ - 3 bedroom semidetached house for sale in Moss Way, West Ber…

View on Property Piper

3 bedroom semi-detached house for sale in Moss Way, West Bergholt, Colchester, CO6

Summary - 16 MOSS WAY WEST BERGHOLT COLCHESTER CO6 3LJ

3 bed 2 bath Semi-Detached

**Standout Features:**
- Thoughtfully extended three-bedroom semi-detached home.
- Spacious open kitchen/dining/family room with vaulted ceiling.
- Stylish family bathroom and utility space.
- Generous rear garden with patio area for outdoor enjoyment.
- Driveway and garage for convenient parking.

**Concise Summary:**
Discover this stunning three-bedroom semi-detached home in the desirable village of West Bergholt, with an attractive guide price of £350,000 - £375,000. This thoughtfully extended property features a spacious open-plan kitchen/dining/family room, enhanced by a striking vaulted ceiling, ideal for modern family living. The generous lounge boasts a box bay window and a cozy fireplace, while a utility room and cloakroom add practical convenience.

Upstairs, you’ll find three well-proportioned bedrooms complemented by a luxurious family bathroom featuring quality finishes. Outside, enjoy a generous garden that offers both a relaxing space for outdoor dining and direct access to the garage. This family-friendly abode is situated close to excellent local amenities, highly regarded schools, and offers great transport links, making it perfect for growing families or commuting professionals.

Don’t miss out on this exceptional opportunity—early viewing is essential to appreciate its full potential!

Property Details

Image Descriptions

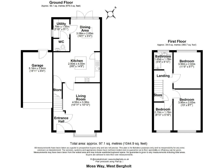
Floorplan Description

Rooms

Textual Property Features

Detected Visual Features

Nearby Schools

Nearest Bars And Restaurants

,,,,}

Nearest General Shops

,,}

Nearest Grocery shops

,,}

Nearest Supermarkets

,,}

Nearest Religious buildings

,,}

Nearest Medical buildings

,,,}

Nearest Leisure Facilities

,,,,}

Nearest Tourist attractions

,,}

Nearest Train stations

,,,,}

Nearest Bus stations and stops

,,,,}

Nearest Hotels

,,}

Tags

Local Market Stats

Similar Properties

Meta

High Res Images

Compatible Images

Low res Images

Thumbnails

Raw Images

High Res Floorplan Images

Compatible Floorplan Images

Low res Floorplan Images

FloorplanImages Thumbnail

Raw Floorplan Images