**Standout Features:**
- Four spacious double bedrooms, all with built-in wardrobes
- Stunning rear extension with vaulted ceiling and bi-fold doors leading to the garden
- Separate study and utility room for added convenience
- Modern en suite bathroom in the main bedroom
- Detached home with ample parking including a single garage
- Enclosed south-east facing garden with patio area
- Energy-efficient property (EPC: B) featuring solar panels
- No onward chain, facilitating a quick move
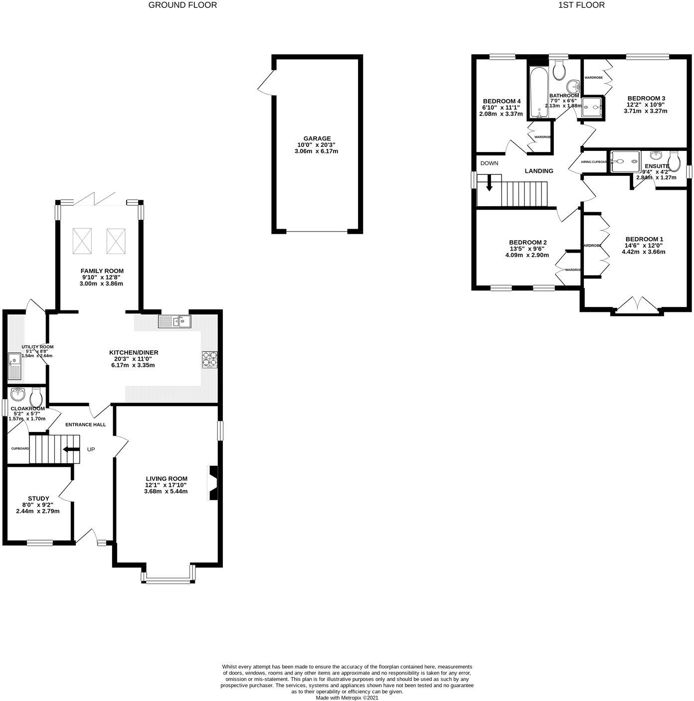
This beautifully extended four-bedroom detached home in Marnel Park offers a harmonious blend of modern living and family-friendly space. Designed by David Wilson Homes, the 'Holden' layout showcases three versatile reception rooms, with the impressive open-plan kitchen at the rear acting as the heart of the home, ideal for both everyday living and entertaining. Natural light floods the space through the vaulted ceiling and bi-fold doors leading to a generous garden, perfect for summer gatherings.
The spacious living room boasts a charming bay window, while a separate study invites productivity in a quiet setting. Upstairs, each of the four double bedrooms provides ample storage with built-in wardrobes, and the main bedroom offers the luxury of a modern en suite and a Juliet balcony for a private retreat. The property sits in a desirable location close to reputable schools and convenient transport links, making it perfect for families. With a drive for multiple cars and the flexibility for future renovations, this home represents an excellent opportunity for comfortable living. Act quickly—this gem, with no onward chain, won't last long!
4 bedroom detached house for sale in Faringdon Court, Basingstoke, Hampshire, RG24 — £475,000 • 4 bed • 2 bath • 1132 ft²
4 bedroom detached house for sale in Benham Road, Basingstoke, RG24 — £525,000 • 4 bed • 2 bath • 1332 ft²
5 bedroom detached house for sale in Appleton Drive, Marnel Park, Basingstoke, RG24 — £547,500 • 5 bed • 3 bath • 1884 ft²
4 bedroom detached house for sale in Fairthorne Rise, Old Basing, Basingstoke, Hampshire, RG24 — £825,000 • 4 bed • 3 bath • 2500 ft²
4 bedroom detached house for sale in Gardiner Road, Basingstoke, Hampshire, RG24 — £500,000 • 4 bed • 2 bath • 1068 ft²
4 bedroom detached house for sale in Wild Herons, Hook, RG27 — £725,000 • 4 bed • 2 bath • 1238 ft²






























































