**Notable Features:**
- Prime development plot on Halifax Road, Hipperholme, HX3
- Previously part of a mixed-use residential and commercial development
- Conveniently located within walking distance to local amenities and high street
- Freehold tenure offering flexibility for future projects
- Potential for various developments, pending planning permission
- SURROUNDING AREAS: access to schools with high Ofsted ratings and community amenities
**Summary:**
Discover an exceptional development opportunity on Halifax Road, nestled in the vibrant community of Hipperholme. This flat and open plot, previously part of a mixed-use scheme, provides a blank canvas for potential residential or commercial projects. Located just a short stroll from local amenities and the high street, your investment will be both strategic and convenient.
This freehold land offers you the flexibility to shape your vision, although please note planning permission will need to be obtained. The surrounding area boasts excellent accessibility to quality schools, making it an attractive choice for families or investors. With future potential limited only by your imagination, seize this chance to carve out a unique space in a bustling urban environment. Opportunities like this don’t last long—act now and bring your ideas to life!
Mixed use property for sale in Land at Cripplegate, Halifax, HX1 1SP, HX1 — POA • 1 bed • 1 bath
Land for sale in Land At Turney Street, Halifax, HX3 — £595,000 • 1 bed • 1 bath
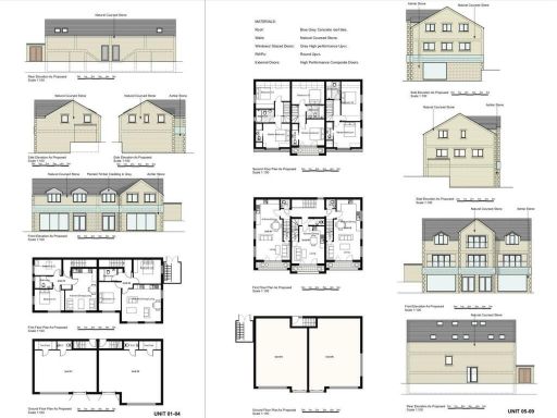
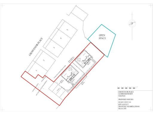
Plot for sale in Grosvenor Place, Luddendenfoot, Halifax, HX2 — £60,000 • 1 bed • 1 bath • 723 ft²
Land for sale in Phase II Development Site, Broad Street, Halifax, HX1 1YA, HX1 — POA • 1 bed • 1 bath • 13993 ft²
Land for sale in Plot 4 Land At Wakefield Road, Copley, HX6 — £150,000 • 1 bed • 1 bath • 2378 ft²
Land for sale in Land at Dodge Holme Court, Halifax, HX2 8PE, HX2 — £70,000 • 1 bed • 1 bath










