Compact two-bedroom home with south-facing garden and excellent transport links.
Freehold Victorian mid-terrace with period features
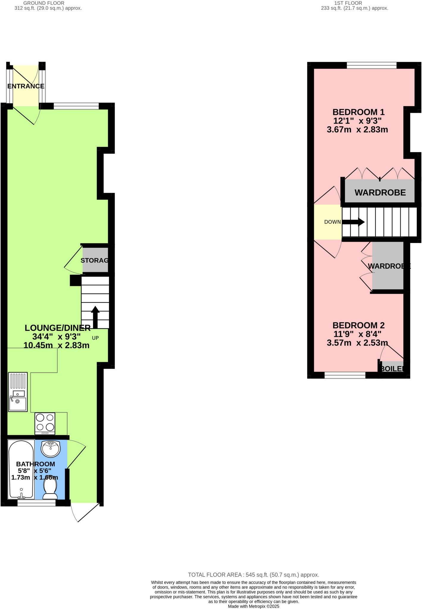
This compact Victorian mid-terrace offers an efficient two-bedroom layout and a sunny south-facing garden in a well-connected Enfield location. The open-plan lounge/kitchen/diner creates one flexible living space ideal for family time or entertaining, while the garden provides a private spot to relax and catch the afternoon sun.
Practical features include double glazing, mains gas central heating with boiler and radiators, freehold tenure and an affordable council tax band. The house sits close to highly rated primary and secondary schools, local shops, and Gordon Hill station (around a 12-minute walk), making daily life straightforward for commuting families and professionals.
The property is small overall (approximately 545 sq ft) and retains period character but will benefit from modernization. The solid brick walls are assumed to have no insulation; upgrading thermal performance and updating finishes or services would improve comfort and value. Buyers should be prepared for cosmetic and medium-level refurbishment rather than a move-in-perfect home.
In short, this is a well-located, characterful Victorian terraced house with good schools nearby and clear scope to add value through sensible improvements. It will suit first-time family buyers or investors seeking a compact, rentable property in a very affluent, low-crime neighbourhood.
2 bedroom terraced house for sale in Sterling Road, Enfield, Middlesex, EN2 — £500,000 • 2 bed • 1 bath • 712 ft²
2 bedroom terraced house for sale in Primrose Avenue, Enfield, Middlesex, EN2 — £420,000 • 2 bed • 1 bath • 816 ft²
2 bedroom terraced house for sale in Sterling Road, Enfield, Middlesex, EN2 — £465,000 • 2 bed • 1 bath • 643 ft²
4 bedroom terraced house for sale in Manor Road, Enfield, EN2 — £650,000 • 4 bed • 2 bath • 1035 ft²
2 bedroom terraced house for sale in Lea Road, Enfield, Middlesex, EN2 — £425,000 • 2 bed • 1 bath • 705 ft²
2 bedroom terraced house for sale in St Johns Terrace, Enfield, Middlesex, EN2 — £530,000 • 2 bed • 1 bath • 810 ft²






























































