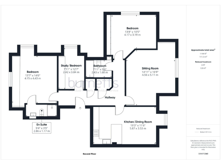
Commuter-friendly three-bedroom apartment with allocated parking and established communal garden.
- Share of freehold with 999-year lease (from 2007)
- Two spacious double bedrooms plus study/bedroom three
- Allocated parking space and visitor parking available
- Modern kitchen with granite worktops and integrated appliances
- Well-screened communal garden with bench, low maintenance
- Service charge £2,533 (2025); review before purchase
- No step-free access to the apartment; top floor location
- Council Tax Band E (above average)
This well-presented second-floor apartment sits in a small purpose-built block of six, built in 2007, and offers comfortable, low-maintenance living just between Wadhurst town centre and the mainline station. The layout includes a generous sitting room and an open-plan kitchen/dining area with granite worktops and integrated appliances, making it an easy home for everyday life or commuter living. Two good-sized double bedrooms, plus a study with built-in desk and wardrobes, give scope for a permanent home office or a third bedroom if required.  Practical features include an allocated parking space, visitor parking, video entry, alarm and an L-shaped hallway with generous storage. The well-screened communal garden with bench provides a pleasant outlook and outdoor space without heavy upkeep.  Buyers should note the property is leasehold with a share of the freehold (999 years from 2007) and an annual service charge of £2,533 for 2025. There is no step-free access to the apartment, and Council Tax sits in Band E, above average for the area. The EPC rating is C. Overall this is a modern, comfortable apartment suited to commuters, downsizers, or investors seeking long lease security and low external maintenance.
 2 bedroom apartment for sale in Great Durgates Close, Wadhurst, East Sussex, TN5 — £395,000 • 2 bed • 2 bath • 1257 ft²
 2 bedroom apartment for sale in Great Durgates Close, Wadhurst, East Sussex, TN5 — £395,000 • 2 bed • 2 bath • 1257 ft² 2 bedroom ground floor flat for sale in Wadhurst, East Sussex, TN5 — £240,000 • 2 bed • 1 bath • 626 ft²
 2 bedroom ground floor flat for sale in Wadhurst, East Sussex, TN5 — £240,000 • 2 bed • 1 bath • 626 ft² 2 bedroom flat for sale in Townlands Road, Wadhurst, TN5 — £325,000 • 2 bed • 1 bath • 667 ft²
 2 bedroom flat for sale in Townlands Road, Wadhurst, TN5 — £325,000 • 2 bed • 1 bath • 667 ft² 2 bedroom apartment for sale in Mutton Hall Hill, Heathfield, TN21 — £225,000 • 2 bed • 2 bath • 727 ft²
 2 bedroom apartment for sale in Mutton Hall Hill, Heathfield, TN21 — £225,000 • 2 bed • 2 bath • 727 ft² 2 bedroom apartment for sale in Bailey Place, Crowborough, East Sussex, TN6 — £260,000 • 2 bed • 2 bath • 442 ft²
 2 bedroom apartment for sale in Bailey Place, Crowborough, East Sussex, TN6 — £260,000 • 2 bed • 2 bath • 442 ft² 2 bedroom terraced house for sale in Kingsley Court, Wadhurst, TN5 — £275,000 • 2 bed • 1 bath • 612 ft²
 2 bedroom terraced house for sale in Kingsley Court, Wadhurst, TN5 — £275,000 • 2 bed • 1 bath • 612 ft²






























































































