Spacious period home with outbuilding and income potential in the town centre.
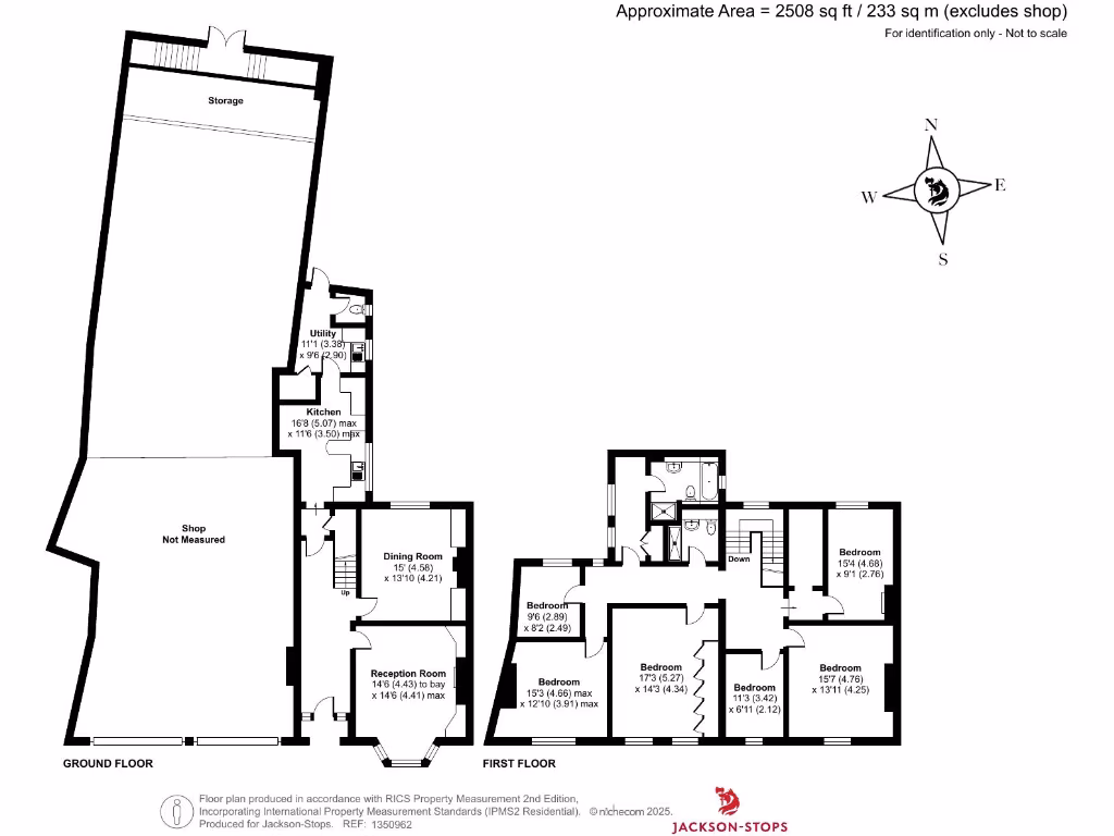
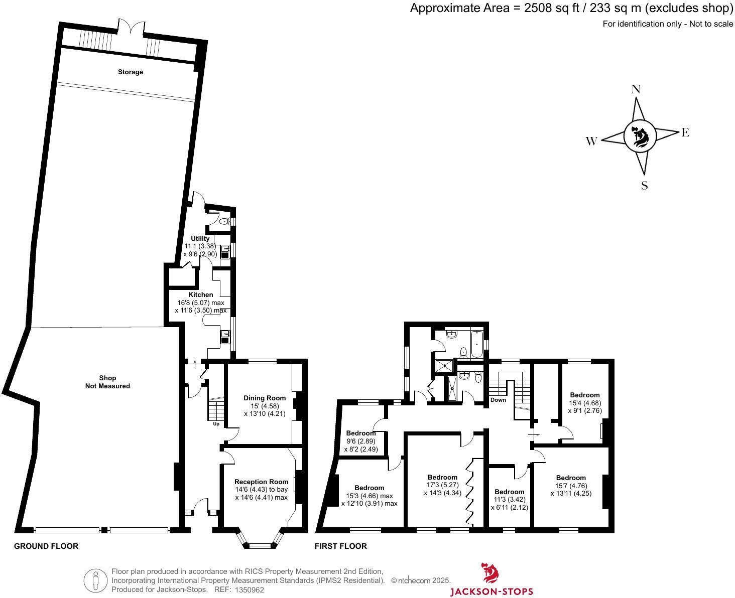
Six bedrooms across generous rooms, many with attractive church views
Over 2,500 sqft of period accommodation with high ceilings and bay windows
Freehold includes adjoining commercial premises currently let long-term
Detached two-storey outbuilding ideal for home office or ancillary use
Private driveway parking for two—rare in a town-centre location
Only two bathrooms for six bedrooms; likely need reconfiguration or addition
EPC D, stone walls assumed uninsulated; will benefit from insulation upgrade
Double glazing installed before 2002; general updating required
A substantial Victorian mid-terrace townhouse offering over 2,500 sqft in the centre of Oundle. The house retains strong period character – high ceilings, bay windows and stone façade – and sits on a private, low-maintenance plot with a detached two-storey outbuilding. With six bedrooms and generous reception rooms, it’s well suited to a large family seeking space close to schools and town amenities.
The layout is versatile and offers clear potential for sympathetic remodelling to create modern living while keeping period detail. Practical benefits include off-street parking for two cars, mains gas central heating and ultrafast broadband. The freehold sale also includes the adjoining commercial premises, which are currently let on a long-term lease, presenting an additional income or investment element.
Buyers should note the property will benefit from updating: the EPC is D, the external stone walls are assumed uninsulated, and the double glazing is older (installed before 2002). There are only two bathrooms for six bedrooms, so reconfiguration or extension could be required depending on family needs. The building’s age and scale mean any renovation will need careful budgeting and possibly specialist conservation advice.
This house will suit a buyer looking for a spacious, characterful family home in a very affluent market town, or an investor wanting a mixed residential/commercial freehold with redevelopment potential. Its central location places schools, shops and community facilities within easy reach, while private driveway parking and a useful outbuilding add practical everyday value.
3 bedroom character property for sale in North Street, Oundle, Peterborough, PE8 — £415,000 • 3 bed • 1 bath • 1131 ft²
3 bedroom house for sale in West Street, Oundle, Northamptonshire, PE8 — £735,000 • 3 bed • 2 bath • 1984 ft²
5 bedroom character property for sale in North Street, Oundle, Peterborough, PE8 — £450,000 • 5 bed • 1 bath • 2874 ft²
5 bedroom house for sale in West Street, Oundle, Peterborough, PE8 — £770,000 • 5 bed • 3 bath • 2573 ft²
4 bedroom terraced house for sale in North Street, Oundle, Peterborough, PE8 — £300,000 • 4 bed • 1 bath • 665 ft²
6 bedroom detached house for sale in North Street, Oundle, Peterborough, PE8 — £995,000 • 6 bed • 4 bath • 3618 ft²














































































































































