**Property Highlights:**
- Grade II listed, built in the 1600s, offering unique character
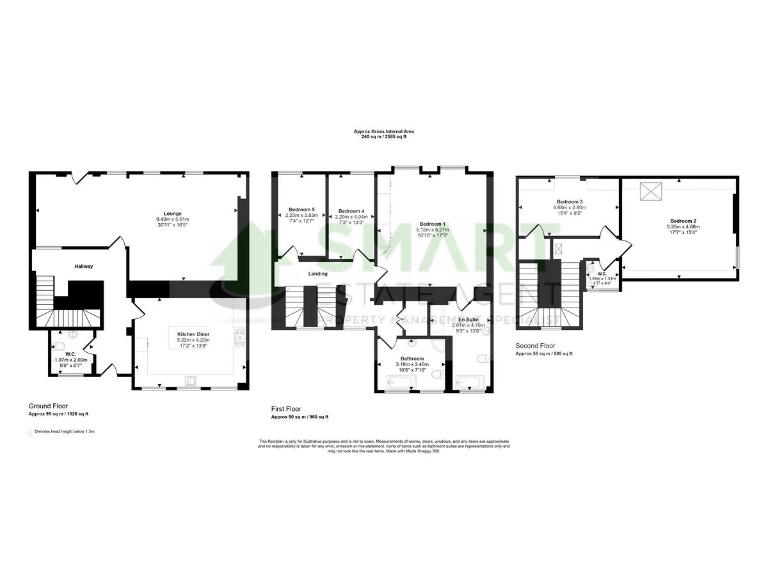
- 5 spacious bedrooms, including a master suite 
- 2 large bathrooms for convenience
- Large private garden with patio and outhouse
- Stunning river views from the upper floors
- 2 allocated parking spaces plus storage outbuilding
- Modern fixtures with gas central heating
This striking Grade II listed terraced house on Countess Wear Road combines historic charm with modern living. With five large bedrooms and two expansive bathrooms, this home offers ample space for families or those seeking a comfortable residence. The bright interior features high ceilings and large windows, enhancing the property's airy feel while retaining its character. Enjoy the warmth of underfloor heating in the farmhouse-style kitchen/diner, which includes a modern island perfect for family gatherings.
The private rear garden is a standout feature, offering a tranquil space for outdoor entertaining or play, complemented by beautiful river views. The garage-like outbuilding provides convenient storage for bikes or sporting equipment. Though renovation or extension possibilities are limited due to the listed status, this property remains a rare opportunity to immerse yourself in the quaint village atmosphere of Countess Wear, just moments from Exeter's vibrant city center. 
Considering its position in a comfortable and affluent neighborhood, this home is not only a unique residence but also a sound investment. With low crime rates and community events at the local village hall, the setting is ideal for families or those seeking a peaceful yet connected lifestyle. Don’t miss your chance to own a piece of history!
 4 bedroom semi-detached house for sale in Countess Wear Road, Exeter, Devon, EX2 — £795,000 • 4 bed • 3 bath • 3000 ft²
 4 bedroom semi-detached house for sale in Countess Wear Road, Exeter, Devon, EX2 — £795,000 • 4 bed • 3 bath • 3000 ft² 5 bedroom semi-detached house for sale in Lower Wear Road, Exeter, EX2 — £365,000 • 5 bed • 3 bath • 1170 ft²
 5 bedroom semi-detached house for sale in Lower Wear Road, Exeter, EX2 — £365,000 • 5 bed • 3 bath • 1170 ft² 5 bedroom semi-detached house for sale in Lower Shapter Street, Topsham, EX3 — £1,200,000 • 5 bed • 3 bath • 2064 ft²
 5 bedroom semi-detached house for sale in Lower Shapter Street, Topsham, EX3 — £1,200,000 • 5 bed • 3 bath • 2064 ft² 2 bedroom semi-detached house for sale in Countess Wear House, 59 Countess Wear Road, Exeter, EX2 — £375,000 • 2 bed • 1 bath • 670 ft²
 2 bedroom semi-detached house for sale in Countess Wear House, 59 Countess Wear Road, Exeter, EX2 — £375,000 • 2 bed • 1 bath • 670 ft² 5 bedroom terraced house for sale in City Centre, Exeter, EX4 — £895,000 • 5 bed • 3 bath • 2338 ft²
 5 bedroom terraced house for sale in City Centre, Exeter, EX4 — £895,000 • 5 bed • 3 bath • 2338 ft² 5 bedroom semi-detached house for sale in Heavitree Park, Exeter, EX1 — £925,000 • 5 bed • 2 bath • 2604 ft²
 5 bedroom semi-detached house for sale in Heavitree Park, Exeter, EX1 — £925,000 • 5 bed • 2 bath • 2604 ft²


































































