Family-friendly three-bedroom home with parking and garden near local schools.
Extended mid-terraced layout with conservatory and open-plan lounge/diner
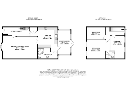
An extended three-bedroom mid-terrace offering generous living space across two floors and approximately 1,383 sq ft. The open-plan lounge/diner and conservatory create bright, flexible ground-floor living ideal for family life, while a fitted kitchen and two bathrooms support busy households. Off-street parking and a private rear garden add practical outdoor space in a compact plot.
Built in the 1930s–1940s and offered freehold, the house combines period character with modern touches such as double glazing and contemporary flooring. Practical strengths include mains gas central heating, excellent mobile signal and fast broadband — useful for home-working or streaming. Nearby schools include several rated Good and one high-performing secondary, making the location suitable for families.
There are clear improvement opportunities: the solid brick walls are assumed uninsulated, and the EPC is rated D, so energy upgrades (loft, wall insulation or boiler works) could reduce bills and add value. The plot is small, so garden space is modest. Overall this property suits a family wanting immediate liveability with scope to modernise and improve energy efficiency over time.
3 bedroom terraced house for sale in Newcroft Close, Uxbridge, UB8 — £575,000 • 3 bed • 3 bath • 1508 ft²
3 bedroom terraced house for sale in Nine Elms Avenue, Uxbridge, UB8 — £535,000 • 3 bed • 1 bath • 1549 ft²
3 bedroom terraced house for sale in East Road, West Drayton, UB7 — £510,000 • 3 bed • 1 bath • 1047 ft²
2 bedroom semi-detached house for sale in Ickenham, Uxbridge, UB10 8PG, UB10 — £614,950 • 2 bed • 1 bath • 1118 ft²
3 bedroom terraced house for sale in Bourne View, Greenford, UB6 — £630,000 • 3 bed • 2 bath • 1129 ft²
3 bedroom semi-detached house for sale in Royal Lane, Uxbridge, UB8 — £450,000 • 3 bed • 1 bath • 946 ft²














































































