Light-filled two-bedroom flat with large basement and off-street parking.
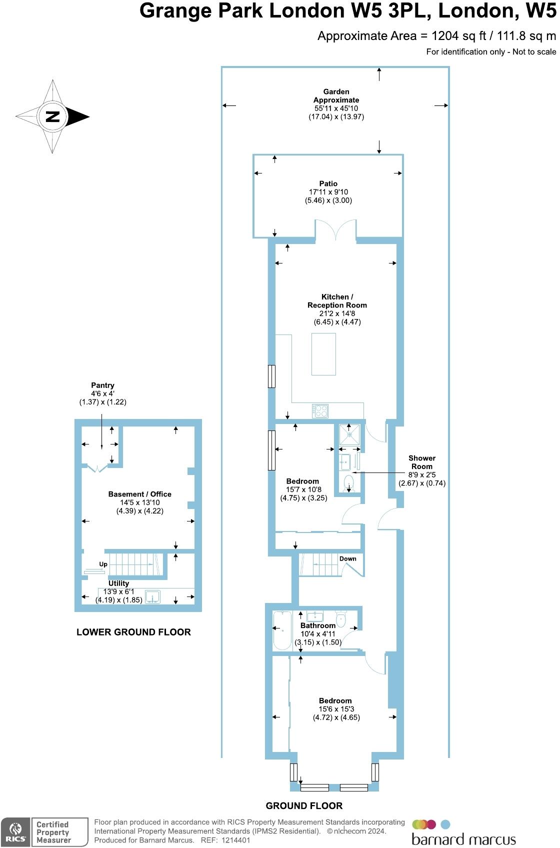
Approximately 1,204 sq.ft internal living space
This ground-floor garden conversion offers a generous 1,204 sq.ft of living space in sought-after Grange Park, Ealing. The layout includes two double bedrooms, two bathrooms and a very large lower-ground multi-room ideal for a home office, gym or extra living space. French doors open to a private patio with access to a large communal rear garden — rare for central locations.
Period character blends with contemporary comforts: high ceilings, double glazing, underfloor heating and a high-spec kitchen create a calm, modern living environment. Practical benefits include off-street parking, excellent mobile signal and fast broadband — useful for remote working and family life. The flat is offered chain free and sits on a long lease (circa 148 years remaining).
Buyers should note this is a leasehold property and additional administrative costs (lease packs, management fees) may apply. The building’s solid-brick walls are understood to have no added insulation (as built), so consider potential improvement works. Appliances and services have not been independently tested; a survey is recommended to confirm mechanical, electrical and structural details.
Well placed for Ealing Broadway amenities, parks and strong local schools, this flat will suit buyers seeking generous, flexible space with period charm and modern fixtures. Its sizeable basement and garden access make it particularly appealing to families or buyers needing dedicated home-working space.
 3 bedroom flat for sale in Grange Park, Ealing W5 — £665,000 • 3 bed • 2 bath • 1052 ft²
 3 bedroom flat for sale in Grange Park, Ealing W5 — £665,000 • 3 bed • 2 bath • 1052 ft² 2 bedroom flat for sale in Grange Road, London, W5 — £465,000 • 2 bed • 1 bath • 560 ft²
 2 bedroom flat for sale in Grange Road, London, W5 — £465,000 • 2 bed • 1 bath • 560 ft² 1 bedroom flat for sale in Grange Park, Ealing, W5 — £375,000 • 1 bed • 1 bath • 440 ft²
 1 bedroom flat for sale in Grange Park, Ealing, W5 — £375,000 • 1 bed • 1 bath • 440 ft² 2 bedroom flat for sale in Freeland Road, London, W5 — £575,000 • 2 bed • 2 bath • 915 ft²
 2 bedroom flat for sale in Freeland Road, London, W5 — £575,000 • 2 bed • 2 bath • 915 ft² 2 bedroom ground floor flat for sale in Grange Park Ealing W5 — £675,000 • 2 bed • 1 bath • 746 ft²
 2 bedroom ground floor flat for sale in Grange Park Ealing W5 — £675,000 • 2 bed • 1 bath • 746 ft² 3 bedroom apartment for sale in Grange Park, London, W5 — £795,000 • 3 bed • 2 bath • 1576 ft²
 3 bedroom apartment for sale in Grange Park, London, W5 — £795,000 • 3 bed • 2 bath • 1576 ft²






















































