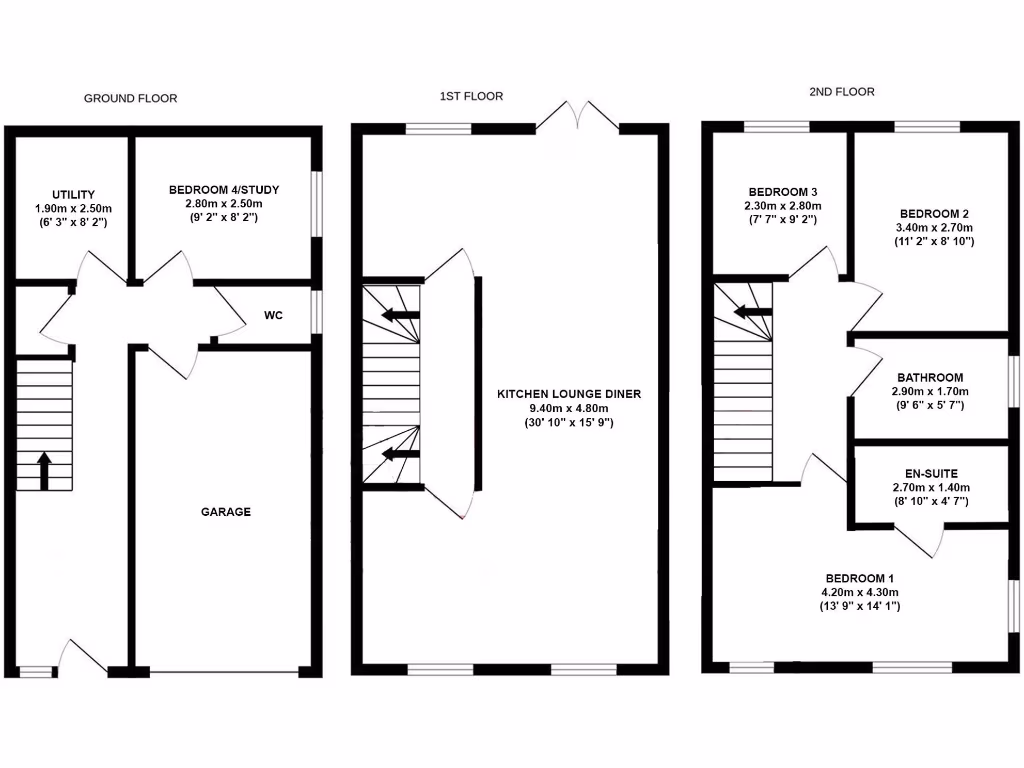
Contemporary 4-bed home with open-plan living and far-reaching views.
Open-plan kitchen/diner/living on middle floor
Set over three levels, this modern four-bedroom home offers a bright, open-plan middle floor that works well as a family hub for cooking, dining and relaxing together. Large windows capture the far-reaching views, and the property benefits from contemporary fixtures, an EPC rating of B and mains gas central heating—comfortable and energy-efficient for everyday family life.
Practical features include an integral garage and driveway parking, fast broadband and excellent mobile signal for home working or streaming. The layout provides three bathrooms and flexible bedroom space across the upper and lower floors, giving room for children, guests or a home office.
Buyers should note the plot is small and the garden fully enclosed, so outdoor space is compact rather than expansive. There’s a mismatch in the supplied information (described as detached but also listed as semi-detached), which should be clarified. Council tax is moderate. Overall, this recently constructed (2019) home will suit families wanting modern, low-maintenance living with strong local schools and easy access to amenities.
4 bedroom detached house for sale in Higson Court, Huddersfield, HD5 — £400,000 • 4 bed • 3 bath • 1227 ft²
4 bedroom detached house for sale in Robsons Drive, Huddersfield, HD5 — £399,950 • 4 bed • 2 bath • 1808 ft²
4 bedroom detached house for sale in Netherton Moor Road,
Netherton,
HD4 7LE, HD4 — £429,950 • 4 bed • 1 bath • 457 ft²
4 bedroom detached house for sale in Wyke Crescent, Bradford, West Yorkshire, BD12 ~ , BD12 — £284,950 • 4 bed • 2 bath • 1189 ft²
4 bedroom detached house for sale in Long Hill Road, Huddersfield, HD2 — £270,000 • 4 bed • 2 bath • 743 ft²
4 bedroom detached house for sale in Arlington Way, Huddersfield, HD5 — £420,000 • 4 bed • 3 bath • 1367 ft²














































































































