### Standout Features:
- Panoramic coastal views and direct beach access.
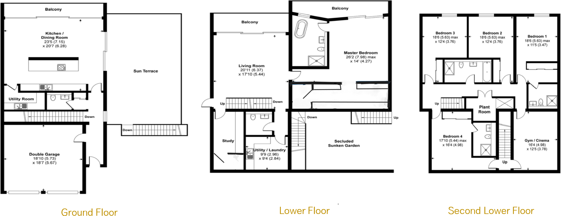
- Stunning architect-designed home with 5 bedrooms and 4 bathrooms across 4,000 sqft.
- Newly renovated with energy-efficient underfloor heating and electric charging points.
- Spacious outdoor terraces and gardens leading directly to Castle Cove beach.
- Oversized double garage and expansive driveway for ample parking.
- Located within walking distance of central Weymouth and its traditional high street.
### Summary:
This remarkable coastal home offers a unique blend of luxury and practicality, perfect for families or those looking for a serene investment. With its versatile layout spanning over 4,000 sqft, you’ll find five generous bedrooms, four bathrooms, and a grand living space designed to capture breathtaking views of the Jurassic Coast through full-height glazing. The modern amenities include a minimalist kitchen fitted with high-end appliances, ensuring effortless entertaining and daily living.
Step outside to a series of terraces, each crafted for outdoor enjoyment and direct access to the sandy beach, providing the ultimate seaside lifestyle. The property boasts energy-efficient features, including underfloor heating and electric vehicle charging, demonstrating thoughtful design and sustainability.
While the property's high-tech and modern features are impressive, the area supports a vibrant community with good local schools and quick access to Weymouth’s charming town and beaches. A potential downside is the average crime rate and community deprivation in the wider area, which potential buyers should consider. Overall, this property, chain-free and ready for immediate move-in, presents an exclusive opportunity you won't want to miss, especially with the incentive to complete before the stamp duty deadline in March 2025. Secure your dream home now and indulge in the coastal lifestyle!
5 bedroom detached house for sale in Weymouth, DT4 — £3,500,000 • 5 bed • 4 bath • 2419 ft²
4 bedroom house for sale in Bowleaze Coveway, Weymouth, DT3 — £1,600,000 • 4 bed • 3 bath • 1895 ft²
3 bedroom house for sale in Bowleaze Coveway, Weymouth, DT3 — £890,000 • 3 bed • 3 bath • 1729 ft²
4 bedroom town house for sale in Waterfront 3-Storey House, No1 Chesil Beach, Weymouth, DT4 — £1,200,000 • 4 bed • 5 bath • 2284 ft²
4 bedroom semi-detached house for sale in Old Castle Road, Weymouth, DT4 — £700,000 • 4 bed • 2 bath • 1761 ft²
3 bedroom chalet for sale in Belmont Street, Weymouth, DT4 — £550,000 • 3 bed • 2 bath • 1298 ft²










































































