Retirement-friendly home with strong connectivity and garden space.
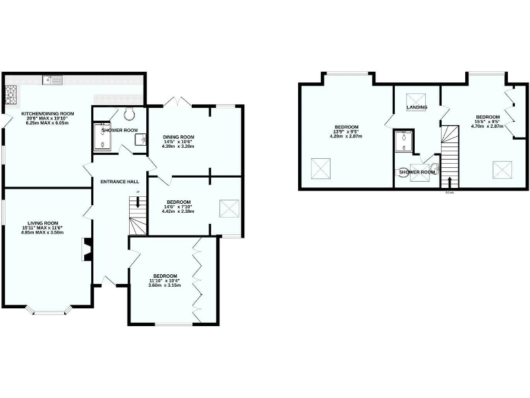
Detached four-bedroom dormer bungalow on a large plot
A spacious four-bedroom detached dormer bungalow set on a large plot in Brixham, offering comfortable single-level living with added upstairs rooms. The home presents a modern-feeling living room and a sizeable garden and patio, ideal for gardening or entertaining while still feeling private and suburban.
This property is marketed with an illustrative Home for Life Lifetime Lease price of £335,000 for buyers aged 60+, representing a typical saving versus the full market value of £500,000. The Lifetime Lease option allows purchasers to buy a percentage share (up to 50%) of the property value; the exact price depends on age and personal circumstances. The standard market route at the full price is also possible.
Practical positives include no flood risk, very low local crime, excellent mobile signal and fast broadband — useful for staying connected. The bungalow’s 1970s dormer extension increases space and versatility, creating a layout that suits downsizers who still want multiple bedrooms for guests, hobbies or a home office.
Notable drawbacks are plain and important: the property has a single bathroom for four bedrooms, tenure details are listed as unknown and must be confirmed by a solicitor, and the Lifetime Lease price is indicative only and will vary. The house likely benefits from some updating and verification of any extensions’ consents before purchase.
4 bedroom detached bungalow for sale in Lichfield Drive, Brixham, Devon, TQ5 — £234,500 • 4 bed • 1 bath • 857 ft²
3 bedroom detached bungalow for sale in Copythorne Park, Brixham, Devon, TQ5 — £258,000 • 3 bed • 1 bath • 873 ft²
2 bedroom bungalow for sale in Cumber Close, Brixham, Devon, TQ5 — £160,750 • 2 bed • 1 bath • 536 ft²
2 bedroom detached bungalow for sale in Cambridge Road, Brixham, Devon, TQ5 — £217,750 • 2 bed • 1 bath • 932 ft²
2 bedroom semi-detached bungalow for sale in Chestnut Drive, Brixham, Devon, TQ5 — £217,750 • 2 bed • 1 bath • 814 ft²
2 bedroom detached bungalow for sale in Eden Grove, Paignton, Devon, TQ3 — £124,000 • 2 bed • 1 bath • 803 ft²






























































