Turn-key coastal home close to the promenade and amenities.
Three-bedroom semi-detached, freshly refurbished throughout
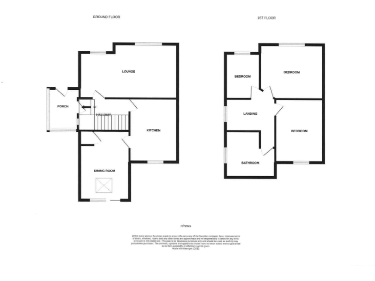
This freshly refurbished three-bedroom semi-detached house sits in a sought-after Penrhyn Bay location, a five-minute walk from the promenade and local amenities. The owners have extended the rear to create a bright dining area with a roof lantern, fitted a modern kitchen with integrated appliances and installed new windows, boiler and carpets — the property is largely turn-key for a family moving straight in.
The layout works well for everyday family life: a dual-aspect lounge, extended dining room with solid oak herringbone flooring and patio access to a low-maintenance landscaped garden with artificial turf and sunny patio. Off-road parking for two cars and a garage add practical value for households who need storage or a workshop.
There are sensible limits to note. The house has a single bathroom serving three bedrooms, and council tax is above average. The wider area shows indicators of social deprivation, despite very low local crime and good transport and leisure links — buyers should view to judge neighbourhood fit.
Overall this freehold property offers a modern, comfortable interior in a characterful Tudor-revival shell, well suited to families or buyers seeking a seaside suburb home with parking and minimal garden upkeep. Viewing is recommended to appreciate the presentation, room proportions and convenient location.
3 bedroom semi-detached house for sale in Llandudno Road, Penrhyn Bay, LL30 — £269,950 • 3 bed • 1 bath
3 bedroom semi-detached house for sale in Maesgwyn Road, Llandudno, LL30 — £335,000 • 3 bed • 1 bath • 860 ft²
3 bedroom semi-detached house for sale in Glan Y Mor Road, Penrhyn Bay, LL30 — £299,950 • 3 bed • 1 bath
2 bedroom semi-detached house for sale in Llanrhos Road, Penrhyn Bay, LL30 — £244,250 • 2 bed • 1 bath • 840 ft²
3 bedroom semi-detached house for sale in Hall Road, Penrhyn Bay, LL30 — £259,950 • 3 bed • 1 bath
3 bedroom semi-detached house for sale in Penrhyn Isaf Road, Penrhyn Bay, Llandudno, Conwy, LL30 — £325,000 • 3 bed • 1 bath


























































































































