Generous single-floor living on a private 0.4-acre plot in sought-after Appleton.
Substantial single-storey accommodation of approximately 2,000 ft²
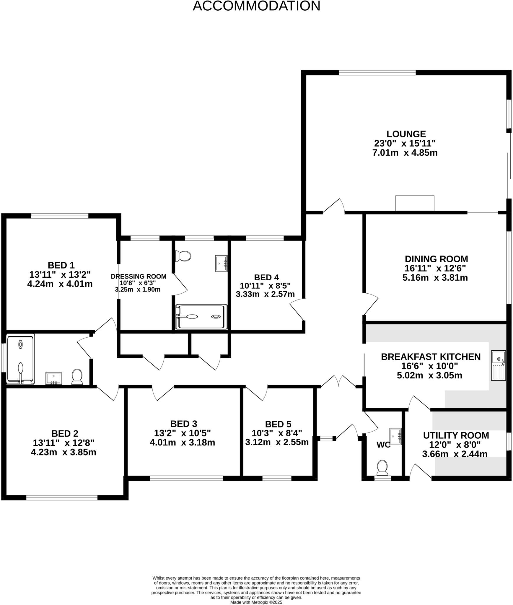
Occupying a wide plot on highly regarded Field Lane, this substantial detached bungalow offers more than typical single-storey living. Recently renovated kitchen and bathrooms, plus a fifth bedroom addition, create a flexible layout extending to about 2,000 ft² — ideal for a growing or multigenerational family wanting single-floor convenience without compromising space.
The accommodation splits naturally into living and sleeping wings: a large lounge with windows to two elevations, separate dining room, breakfast kitchen with utility, and five double bedrooms including a rear main bedroom with dressing room and en-suite. Generous gardens around 0.4 acre back onto protected woodland, providing privacy, mature landscaping and paved entertaining terraces.
Practical positives include a garage and driveway parking, mains gas central heating with boiler and radiators, double glazing, freehold tenure and very low local crime. The location is a strong draw — close to Warrington Golf Course, Stockton Heath amenities, good road links to the M56 and a choice of well-regarded state and independent schools.
Notable practical points: council tax is described as quite expensive, and the property’s construction era (1983–1990) and unspecified double glazing installation date mean some elements may require future maintenance despite recent refurbishments. Flood risk is low, broadband and mobile signals are strong, and the plot offers further scope for landscaping or extensions subject to planning.
4 bedroom detached bungalow for sale in Red Lane, Appleton, Warrington, WA4 — £550,000 • 4 bed • 2 bath • 1497 ft²
4 bedroom detached bungalow for sale in Highfield Avenue, Appleton, Warrington, WA4 — £550,000 • 4 bed • 2 bath • 1637 ft²
3 bedroom detached bungalow for sale in Dudlow Green Road, Appleton, Warrington, WA4 — £665,000 • 3 bed • 2 bath • 1901 ft²
3 bedroom detached bungalow for sale in Petersham Drive, Appleton, WA4 — £650,000 • 3 bed • 2 bath • 1287 ft²
3 bedroom detached bungalow for sale in Dudlow Green Road, Appleton, Warrington, WA4 — £450,000 • 3 bed • 1 bath • 1216 ft²
4 bedroom detached house for sale in Weybridge Close, Appleton, WA4 — £585,000 • 4 bed • 2 bath • 1480 ft²


























































































































































































