Chain-free extended semi with modern kitchen, conservatory and private garden.
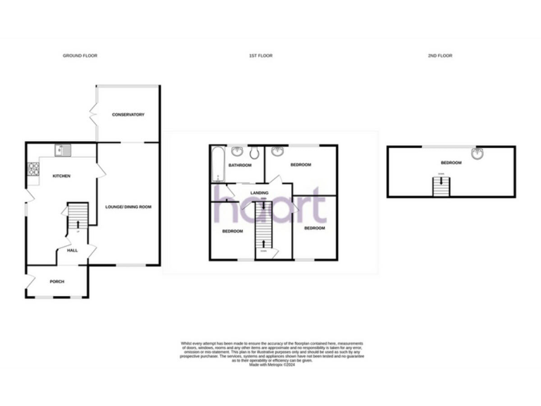
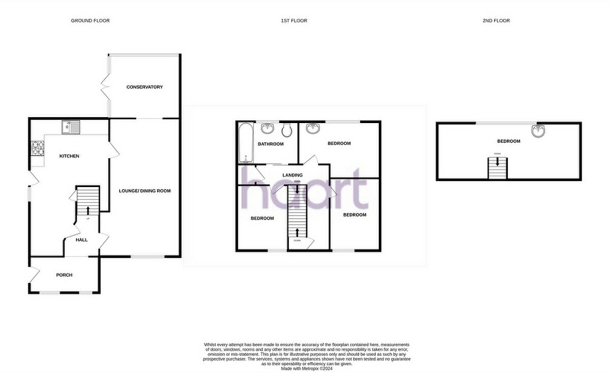
Large internal size across three floors
Three double bedrooms, additional top-floor room/ bathroom
Modern kitchen-diner with breakfast bar and under-cabinet lighting
Bright conservatory overlooking enclosed private garden
Driveway for off-street parking; freehold and chain free
Small plot size; garden mature but compact
Located in area with above-average crime and high deprivation
Discrepancy noted: listing mentions four-bedroom extension; confirm layout
Set across three floors, this semi-detached home on Silk Mill Drive combines period shells with a modern extension and finishes. A contemporary kitchen-diner and a bright conservatory open onto a private, enclosed garden with mature plants and fruit trees — a pleasant outdoor space for families or anyone who gardens. Off-street parking on the driveway and chain-free sale add convenience for buyers seeking a straightforward move.
The property is presented with double glazing and gas central heating, and the living room’s fireplace provides a cosy focal point. There are three generous double bedrooms and a family bathroom on the first floor, with an additional bathroom/room on the top floor that can serve as a home office or private retreat. Note: sale details also reference a four-bedroom extension; buyers should verify the exact current layout and room count during viewing.
Practical considerations: the house sits on a relatively small plot and is located in a part of LS16 with higher-than-average crime and significant area deprivation. These local factors affect long-term desirability and should be weighed against the property’s size, condition and strong local transport and school links.
Overall, the house will suit families and professionals seeking more space and a ready-to-live-in home with scope to personalise. Early viewing is recommended for those prioritising a large internal footprint, modern kitchen space and a private garden in a well-connected part of Leeds.
3 bedroom semi-detached house for sale in Kenilworth Road, Leeds, West Yorkshire, LS12 — £235,000 • 3 bed • 1 bath • 817 ft²
3 bedroom terraced house for sale in Silk Mill Close, Leeds, LS16 — £240,000 • 3 bed • 1 bath • 674 ft²
3 bedroom semi-detached house for sale in Orchard Square, Leeds, West Yorkshire, LS15 — £220,000 • 3 bed • 1 bath • 829 ft²
3 bedroom semi-detached house for sale in Willow Way, Whinmoor, Leeds, LS14 — £300,000 • 3 bed • 2 bath • 1063 ft²
3 bedroom semi-detached house for sale in Roxholme Avenue, Leeds, LS7 — £290,000 • 3 bed • 1 bath • 657 ft²
3 bedroom semi-detached house for sale in Leysholme View, Leeds, LS12 — £240,000 • 3 bed • 1 bath • 674 ft²






































































