**Standout Features:**
- Spacious Victorian terrace with larger-than-average room sizes
- Requires updating and modernization, ideal for investors seeking renovation projects
- Central location near Medway Maritime Hospital
- Gas central heating and mostly double-glazed windows
- Freehold tenure with a manageable council tax band
**Concise Summary:**
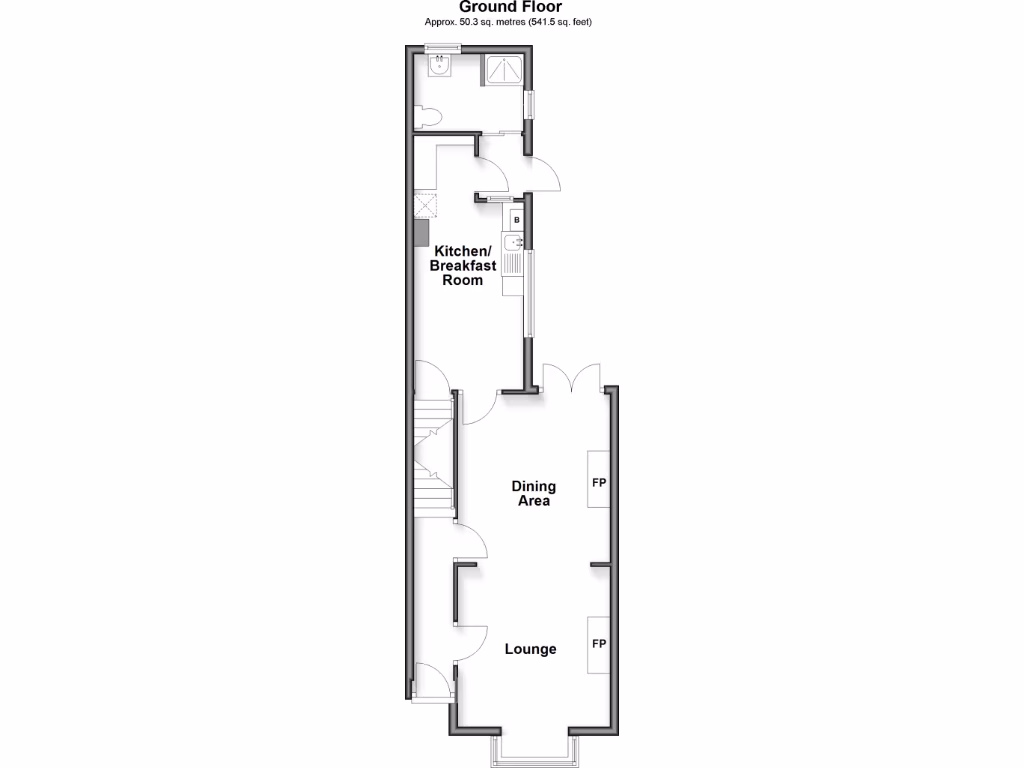
This charming Victorian terraced house presents a remarkable opportunity for investors or first-time buyers looking to create a personalized living space. With overall size at 1,041 sq ft, the property boasts generous room dimensions—including a spacious lounge, dining area, and a bright kitchen/breakfast room. The three bedrooms offer comfort and potential for creative design.
Although the property is in need of modernisation, it features gas central heating and double glazing, ensuring essential warmth and energy efficiency. A front and rear garden provides outdoor space, while on-street parking enhances convenience. The location is ideal for those who appreciate community amenities and easy access to Medway Maritime Hospital, situated amidst a diverse urban cultural environment.
Do keep in mind that the property may present outdated decor and some maintenance necessities, which can be expected in a home of its vintage, but this also affords you the chance to customize the interior as you see fit. With the right vision, this gem could shine again—don’t miss out on this unique opportunity!











































