Chain-free terrace with garden, long lease and good local amenities.
Chain free with immediate occupation available
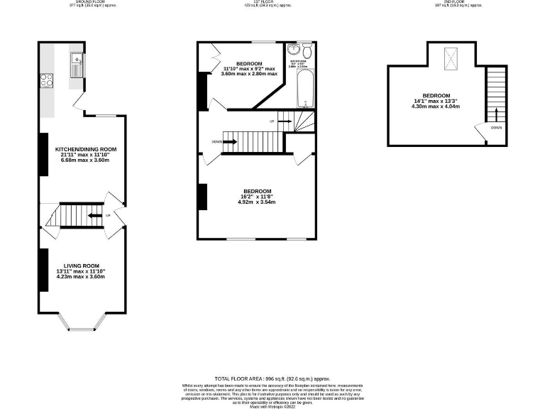
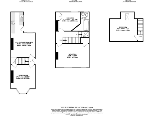
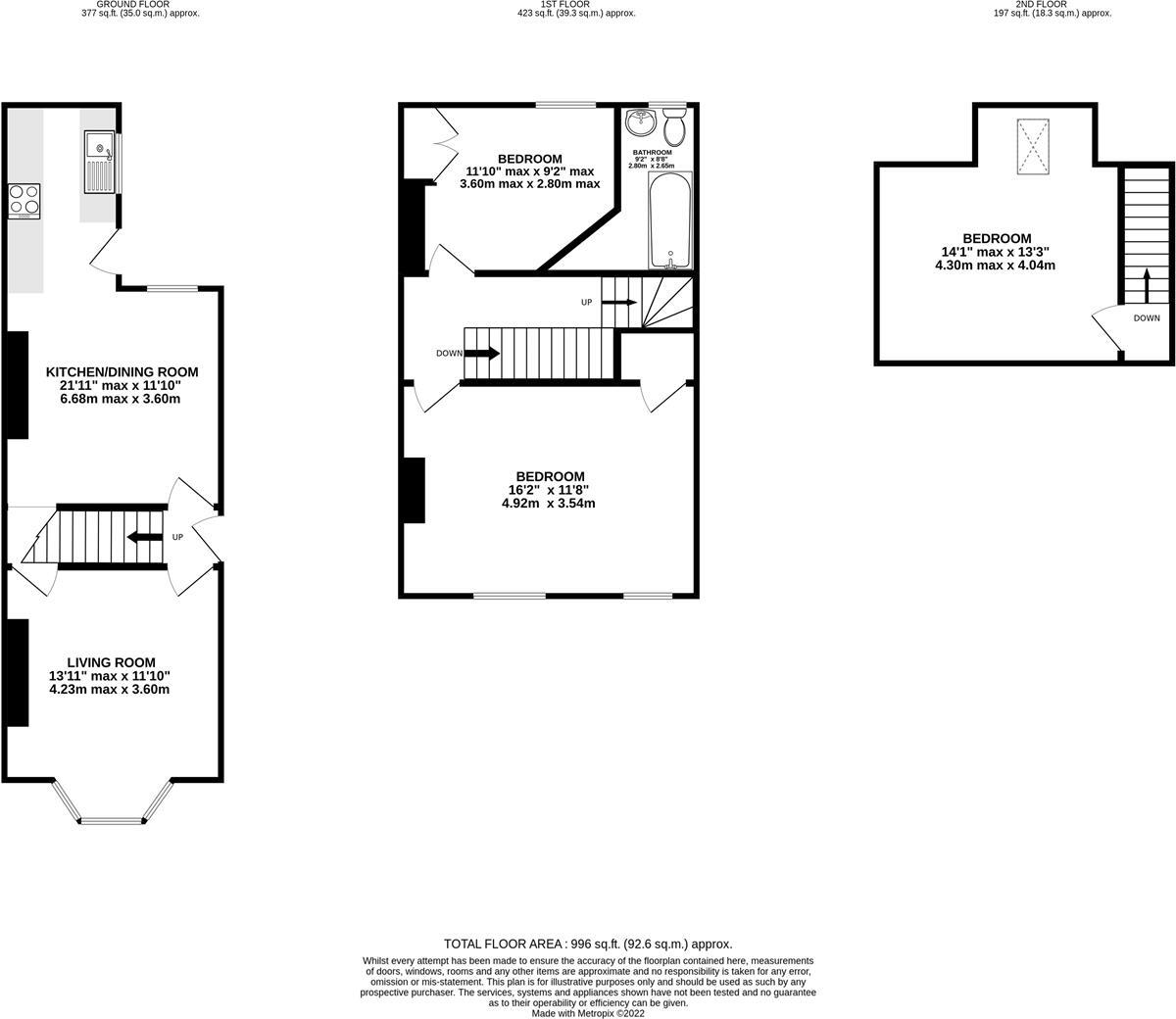
Set on a quiet no-through road in Abbeydale, this traditional mid-terraced home provides practical family living across three floors. The bay-windowed reception room and rear open-plan kitchen/diner give flexible social space, while three good-sized bedrooms suit children or home working. The property comes to market chain free and offers immediate occupation.
Practical strengths include a private enclosed rear garden, double glazing installed since 2002, mains gas central heating and a very long lease (663 years) with a nominal £2 ground rent. Local shops, supermarkets and well-regarded schools are within walking distance, and Sheffield city centre and the Peak District are easily reachable for weekend trips.
Buyers should note a few material points: the EPC is rated E and the original solid brick walls are likely uninsulated, so energy improvements may be needed to reduce running costs. There is a single bathroom for three bedrooms and the house is typical in width and room sizes for its period, so buyers seeking large, modern layouts should expect modest proportions. Overall, this is a sensible, well-located starter or family home with scope to improve energy efficiency and personalise the interior.
3 bedroom terraced house for sale in Plymouth Road, Abbeydale, Sheffield 7, S7 — £190,000 • 3 bed • 1 bath • 1023 ft²
3 bedroom terraced house for sale in 845 Abbeydale Road Abbeydale Sheffield S7 2BH, S7 — £265,000 • 3 bed • 1 bath • 1161 ft²
3 bedroom terraced house for sale in Abbeydale Road, Abbeydale, S7 — £210,000 • 3 bed • 1 bath • 1343 ft²
3 bedroom terraced house for sale in 13 Conistion Road Abbeydale Sheffield S8 0UT, S8 — £209,950 • 3 bed • 1 bath • 859 ft²
3 bedroom terraced house for sale in Lynmouth Road, Abbeydale, S7 — £265,000 • 3 bed • 1 bath • 1123 ft²
4 bedroom terraced house for sale in Abbeydale Road, Abbeydale, Sheffield, S7 — £240,000 • 4 bed • 1 bath • 1338 ft²






























































