Turnkey four-bedroom family home in popular development with warranty still valid.
Less than five years old; still within new-home warranty
Landscaped rear garden; low-maintenance outdoor space
Off-street parking to the rear; convenient for families
Spacious principal bedroom with en-suite bathroom
Three-storey layout — may affect accessibility for some buyers
Mid-terrace property of average overall size
Freehold tenure and no onward chain
Close to M5, shops and Good-rated schools
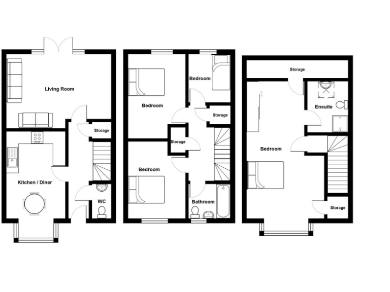
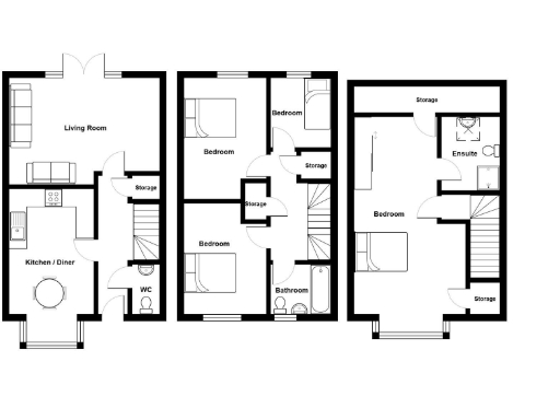
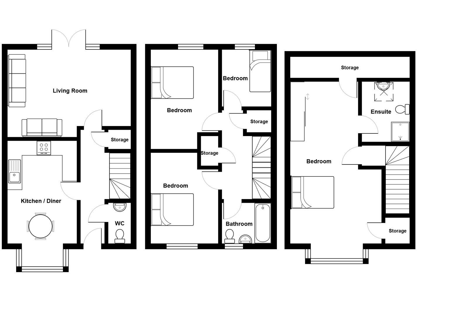
This modern four-bedroom townhouse on Mead Fields offers a ready-made family home built in 2021 and still covered by its new-home warranty. The house is presented in good order with a contemporary kitchen/diner, bright living room and a landscaped rear garden that gives a low-maintenance outdoor space for children and entertaining.
Accommodation is spread over three storeys, with a large principal bedroom and en-suite, three further bedrooms and a family bathroom. Off-street parking to the rear and pleasant front-aspect views add convenience and kerb appeal. The property’s location provides quick access to the M5, local supermarkets, schools rated Good and nearby amenities in a small town setting.
Practical points to note: the home is mid-terrace and of average overall size for a house of this layout. It has mains gas central heating with boiler and radiators, a moderate council tax band and low flood risk. The three-storey layout may not suit buyers needing single-level living.
Offered with no onward chain and freehold tenure, this house will suit families or buyers seeking a turn-key purchase in a popular, well-connected development.
4 bedroom semi-detached house for sale in Cowleaze Path, Mead Fields - AS NEW CONDITION, BS29 — £325,000 • 4 bed • 2 bath • 345 ft²
4 bedroom semi-detached house for sale in Porters Drive, Banwell - WHAT A HOUSE!, BS29 — £369,950 • 4 bed • 2 bath • 1265 ft²
4 bedroom semi-detached house for sale in Plot 40 Wain Homes, Mead Fields - BRAND NEW HOME, BS29 — £410,000 • 4 bed • 2 bath
4 bedroom detached house for sale in Dyer Street, Banwell, BS29 — £370,000 • 4 bed • 2 bath • 1125 ft²
3 bedroom town house for sale in Bow Acre Gardens, Banwell, Somerset, BS29 — £324,950 • 3 bed • 1 bath • 1228 ft²
4 bedroom detached house for sale in Dyer Street, Banwell, BS29 — £440,000 • 4 bed • 2 bath • 591 ft²






































































































