Affordable family living with modern kitchen and vaulted bedroom ceilings.
Freehold three-bedroom semi-detached, approx. 1,086 sq ft
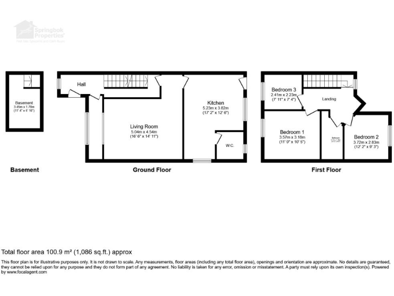
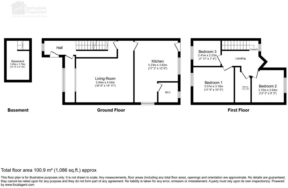
A spacious three-bedroom semi-detached home offering practical family living with room to personalise. The property benefits from a modern kitchen/diner, vaulted ceilings in the bedrooms for a light, airy feel, and a useful cellar for extra storage. A rear yard and separate utility/WC increase day-to-day convenience.
This freehold house (approx. 1,086 sq ft) sits in a well-connected area with fast broadband and excellent mobile signal, close to several good primary and secondary schools and commuter links including access toward the M62. Internal heating is mains gas with boiler and radiators; glazing is double glazed (install date unknown).
Important points to note: the local area records high crime and very high deprivation, which will influence community feel and resale dynamics. The house has a single family bathroom only and is of average overall size; some buyers may choose to update or reconfigure spaces. Viewing is advised to appreciate the layout and storage potential.
This property will suit buyers seeking an affordable, ready-to-live-in family home with scope to add value through targeted improvements, or purchasers prioritising location and connectivity over a tranquil neighbourhood setting.
2 bedroom semi-detached house for sale in Sunshine Court, Bradford, West Yorkshire, BD6 — £140,000 • 2 bed • 1 bath • 763 ft²
3 bedroom terraced house for sale in Summerbridge Crescent, Bradford, West Yorkshire, BD10 — £145,000 • 3 bed • 1 bath • 782 ft²
3 bedroom terraced house for sale in Old Lane, Bradford, West Yorkshire, BD11 — £210,000 • 3 bed • 1 bath • 1503 ft²
5 bedroom detached house for sale in Park Mount Avenue, Baildon, Shipley, West Yorkshire, BD17 — £420,000 • 5 bed • 2 bath • 1736 ft²
3 bedroom terraced house for sale in Horton Terrace, Hipperholme, Halifax, West Yorkshire, HX3 — £155,000 • 3 bed • 2 bath • 1182 ft²
2 bedroom end of terrace house for sale in Louisa Street, Bradford, West Yorkshire, BD10 — £80,000 • 2 bed • 1 bath • 689 ft²










































































