Large plot, garage and scope to extend for growing families.
Four double bedrooms, large principal room with fitted wardrobes
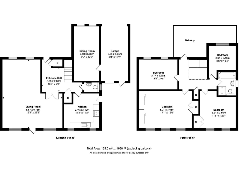
Set on a generous plot in a quiet cul-de-sac, this four-bedroom detached home offers adaptable family living across two floors. A bright double-height entrance hall leads to a large lounge, separate dining room and a modern kitchen with practical integrated appliances. The private rear garden and balcony extend living outdoors for children and entertaining.
Bedrooms are well-proportioned, with built-in wardrobes in the principal room and scope to add an en-suite. The property includes an integral single garage with internal access and a wide block-paved driveway for multiple cars. There is clear potential to extend into the space behind the garage (subject to planning) to create a larger kitchen/family area.
Practical points: the house is freehold with EPC rating C and warm-air mains gas heating. The family bathroom is a single four-piece suite serving all bedrooms, so adding an en-suite or second bathroom would improve daily convenience. Council tax is band G and therefore relatively costly.
Located in the LS16 area with good transport links, local amenities and several well-rated primary and secondary schools nearby, this home suits growing families seeking space, privacy and the prospect of sensible improvements to increase long-term value.
4 bedroom detached house for sale in Wigton Lane, Leeds, LS17 — £750,000 • 4 bed • 3 bath • 2142 ft²
4 bedroom detached house for sale in Grangewood Gardens, West Park, Leeds, West Yorkshire, LS16 — £650,000 • 4 bed • 1 bath • 1507 ft²
4 bedroom detached house for sale in Rochester Wynd, Leeds, LS17 — £575,000 • 4 bed • 2 bath • 1475 ft²
4 bedroom detached house for sale in Elm Drive, Leeds, LS14 — £360,000 • 4 bed • 3 bath • 1174 ft²
4 bedroom detached house for sale in Kingfisher Way, Leeds, LS17 — £475,000 • 4 bed • 2 bath • 1194 ft²
4 bedroom detached house for sale in Oakdale Meadow, Leeds, West Yorkshire, LS14 — £375,000 • 4 bed • 2 bath • 1055 ft²


























































































































