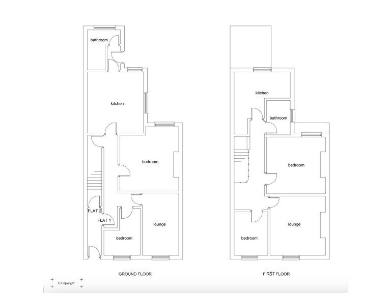
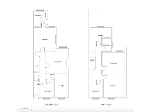
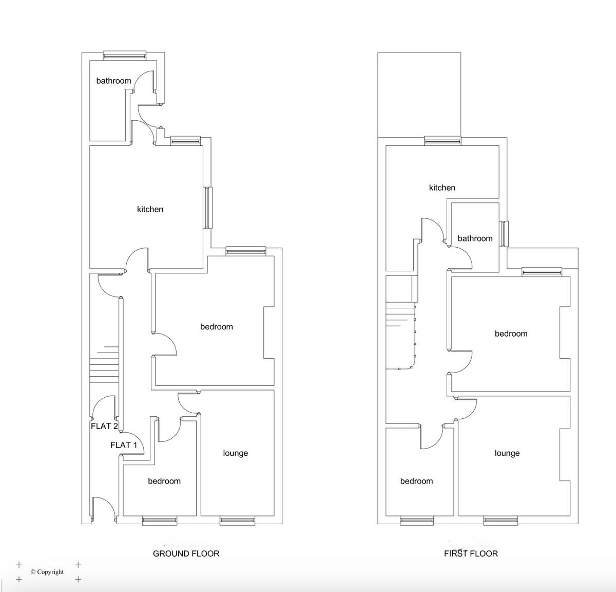
**Standout Features:**
- **Property Type:** Mid-terrace converted into two self-contained apartments
- **Bedrooms:** 4 total (2 in each apartment)
- **Bathrooms:** 2 (1 per apartment)
- **Rental Income:** Each apartment currently rented at £650/month, providing a 9.5% return.
- **Outdoor Space:** Generous rear courtyard garden and basement.
- **Heating:** Gas central heating and double glazing.
- **Local Amenities:** Close proximity to schools rated ‘Good’ and ‘Outstanding’, shopping, and transport links.
- **Regeneration Area:** Located near the revitalization efforts of New Ferry and near Port Sunlight Village.
**Potential Downsides:**
- **Area Challenges:** High crime rates and high levels of deprivation noted in the area.
- **Property Condition:** Solid brick construction with no insulation (assumed); potential renovation or updates may be required.
This versatile mid-terrace property is not only an ideal investment opportunity but also offers fantastic living spaces in a thriving community. Split into two well-designed apartments, both apartments feature spacious living areas, stylish kitchen-diners, and come equipped with essential amenities. With a combined rental potential, this property appeals to investors seeking strong returns while offering ample scope for further improvements or potential renovations over time. Ideal for families or first-time buyers who value community amenities and the opportunity for rental income. Don't miss out on this unique investment in a location on the rise; schedule your viewing today to envision the possibilities!
4 bedroom terraced house for sale in Ingleby Road, New Ferry, Wirral, CH62 — £165,000 • 4 bed • 4 bath • 1014 ft²
8 bedroom block of apartments for sale in Digg Lane, Moreton, CH46 — £300,000 • 8 bed • 4 bath • 894 ft²
4 bedroom terraced house for sale in New Chester Road, Birkenhead, Merseyside, CH42 — £130,000 • 4 bed • 3 bath • 856 ft²
8 bedroom property for sale in Euston Grove, Prenton, Merseyside, CH43 — £365,000 • 8 bed • 4 bath • 1703 ft²
4 bedroom terraced house for sale in Onslow Road, New Ferry, CH62 — £155,000 • 4 bed • 1 bath • 903 ft²
2 bedroom terraced house for sale in Ashley Street, Rock Ferry, Merseyside, CH42 — £90,000 • 2 bed • 1 bath • 575 ft²


















































