Characterful village detached cottage with garden, parking and countryside views.
Detached stone cottage with countryside and park views
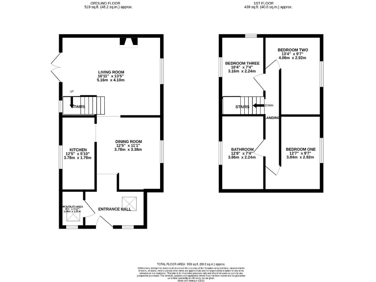
This detached stone cottage on The Hill in Middleton blends traditional character with practical, modern comforts. The ground floor benefits from underfloor heating and a recently fitted combi boiler, while a dual-aspect living room and separate dining room with a wood-burning stove create warm, sociable spaces. Double doors open to a private rear garden with open countryside views and immediate access to East Carlton Country Park.
The house is well suited to families who value village life and outdoor space. The plot is a decent size with a double-width driveway providing generous off-street parking. Local primary schools rated Good are within easy reach, and the village has fast broadband and excellent mobile signal — useful for remote working or streaming.
Practical points to note: the property is an average-sized home at about 958 sq ft with three bedrooms but a single family bathroom, which may feel constrained for larger families or busy mornings. The layout is traditional rather than open-plan, so any buyer seeking a modern, fully open living area should expect some remodelling to achieve that.
Overall, this is a characterful, largely move-in-ready cottage that balances period appeal with sensible upgrades. It will particularly suit buyers who prioritise village location, outdoor access and countryside views, while being aware of the modest internal floor area and single bathroom layout.
3 bedroom house for sale in School Hill, Middleton, Market Harborough, LE16 — £450,000 • 3 bed • 1 bath • 1444 ft²
2 bedroom semi-detached house for sale in Main Street, Middleton, Market Harborough, LE16 — £375,000 • 2 bed • 1 bath • 947 ft²
3 bedroom detached house for sale in The Hill. Middleton, Market Harborough, Leicestershire, LE16 8YX, LE16 — £390,000 • 3 bed • 2 bath • 814 ft²
4 bedroom detached house for sale in Main Street, Middleton, LE16 — £550,000 • 4 bed • 2 bath • 1617 ft²
5 bedroom detached house for sale in Middleton, Market Harborough, LE16 — £650,000 • 5 bed • 3 bath • 1795 ft²
3 bedroom detached house for sale in School Hill, Middleton, Market Harborough, Leicestershire, LE16 8YZ, LE16 — £475,000 • 3 bed • 2 bath • 1042 ft²


































































































