Efficient two-bedroom flat with parking and balcony, ideal for compact city living.
Chain free and first-floor apartment with balcony
Allocated undercover parking for one vehicle
EPC Band B — efficient, low energy bills
Long lease remaining (circa 977 years)
Service charge £197.72 pcm; ground rent £153 pa
No pets allowed by head lease
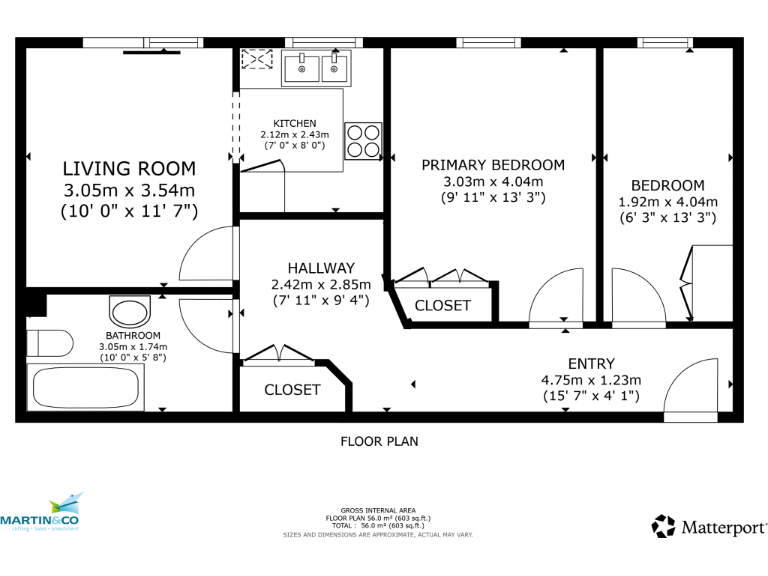
Compact overall size (~603 sq ft) — limited living space
Gas central heating and double glazing throughout
This first-floor two-bedroom apartment in the Regency Walk development offers a compact, low-maintenance base in central Cheltenham. The sitting/dining room opens to a balcony, and the fitted kitchen with double electric oven and gas hob makes daily living straightforward. Karndean flooring, double glazing and gas central heating help keep running costs low; the property benefits from an efficient EPC band B and council tax band B.
Practical features include allocated undercover parking for one car, hallway storage and built-in wardrobes in both bedrooms. The layout suits a couple, first-time buyer or commuter wanting quick access to local amenities and good transport links. The development was built in the mid-2000s and presents modern finishes throughout.
Note the apartment is leasehold with a long remaining term (circa 977 years). Service charge is £197.72 pcm and ground rent £153 pa. Pets are not permitted under the head lease, and the overall footprint is relatively small at about 603 sq ft, so space-conscious buyers should view in person to assess suitability.
Offered chain free, this practical, energy-efficient apartment is a convenient city base with parking and a balcony — ideal for buyers prioritising low bills and easy maintenance rather than extensive living space.
2 bedroom flat for sale in Brookbank Close, Cheltenham, GL50 — £178,995 • 2 bed • 1 bath • 622 ft²
2 bedroom apartment for sale in Brookbank Close, Cheltenham, Gloucestershire, GL50 — £190,000 • 2 bed • 1 bath • 563 ft²
2 bedroom apartment for sale in Belworth Court, Cheltenham, Gloucestershire, GL51 — £210,000 • 2 bed • 1 bath • 702 ft²
2 bedroom apartment for sale in St James South, Jessop Avenue, Cheltenham, GL50 — £210,000 • 2 bed • 2 bath • 671 ft²
2 bedroom apartment for sale in Evesham Road , Cheltenham , GL52 — £299,950 • 2 bed • 2 bath • 762 ft²
2 bedroom flat for sale in Western Road GL50 3RH, GL50 — £265,000 • 2 bed • 1 bath • 721 ft²






































