N3 1BJ - 3 bed spacious edwardian flat in Church Crescent, N3 1BJ

View on Property Piper

3 bedroom apartment for sale in Church Crescent, Finchley, London, N3

Summary - 50 Church Crescent, LONDON N3 1BJ

3 bed 1 bath Apartment

Large three-bedroom first-floor flat with garden, long lease and excellent school links..
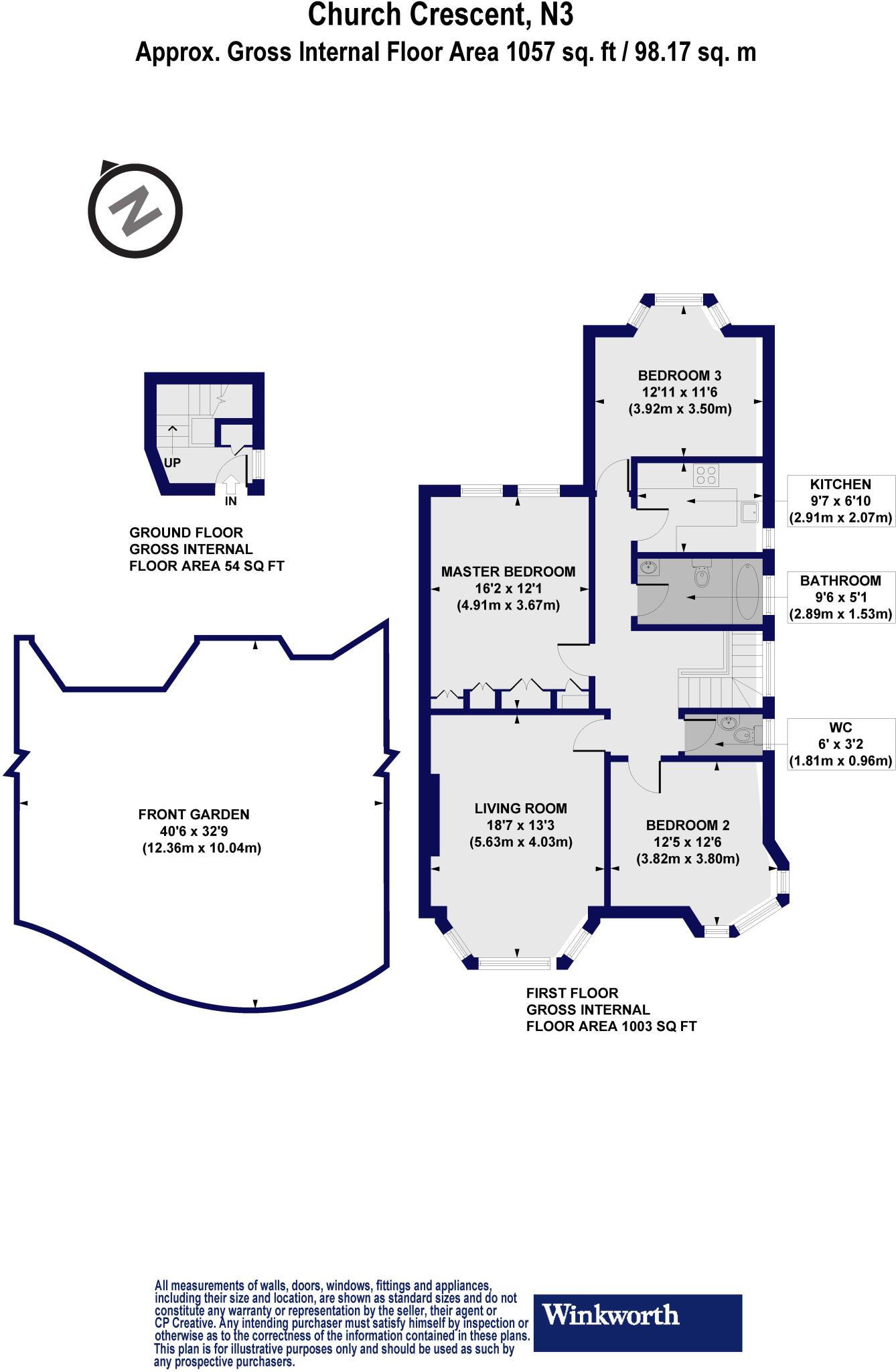
Over 1,000 sq ft of living space
Three double bedrooms, large reception room
Private section of garden
Very long lease (927 years) and chain free
Single bathroom plus separate WC
Potential damp noted on landing — needs checking
Very slow broadband in the area
Double glazing installed before 2002
A spacious three-bedroom Edwardian first-floor flat set on a prestigious Finchley road, offering over 1,000 sq ft of characterful living space. High ceilings, a large reception room and period features give the apartment a bright, traditional feel while retaining practical modern comforts such as mains gas central heating and double glazing.

The layout suits a family or professionals wanting convenient access to outstanding local primary schools, Regent's Park Road shops and Finchley Central underground. The flat includes a fitted kitchen, bathroom plus separate WC, loft access and a private section of garden for outside relaxation.

Practical positives include a very long lease (927 years) and chain-free sale. Notable drawbacks are a single bathroom for three double bedrooms, very slow broadband in the area and some signs of potential damp on the landing that will need investigation. Double glazing installed before 2002 may require future updating.

Overall this is a characterful, well-located home with scope to modernise utilities and decorate to personal taste — a good option for families seeking space and local schooling, or buyers aiming to add long-term value in a favoured North London pocket.

Property Details

Brochure Descriptions

Image Descriptions

Floorplan Description

Rooms

Textual Property Features

Target Audience

AI Tags

Detected Visual Features

EPC Details

Nearby Schools

Nearest Bars And Restaurants

,,,,}

Nearest General Shops

,,}

Nearest Grocery shops

,,}

Nearest Supermarkets

,,}

Nearest Religious buildings

,,}

Nearest Medical buildings

,,,}

Nearest Airports

,}

Nearest Leisure Facilities

,,,,}

Nearest Tourist attractions

,,}

Nearest Train stations

,,,,}

Nearest Bus stations and stops

,,,,}

Nearest Hotels

,,}

Tags

Local Market Stats

AirBnB Data

Similar Properties

Meta

High Res Images

Compatible Images

Low res Images

Thumbnails

Raw Images

High Res Floorplan Images

Compatible Floorplan Images

Low res Floorplan Images

FloorplanImages Thumbnail

Raw Floorplan Images