Compact, freehold two-bed with garage — ideal for first-time buyers or investors..
- Freehold mid-terrace house with no onward chain
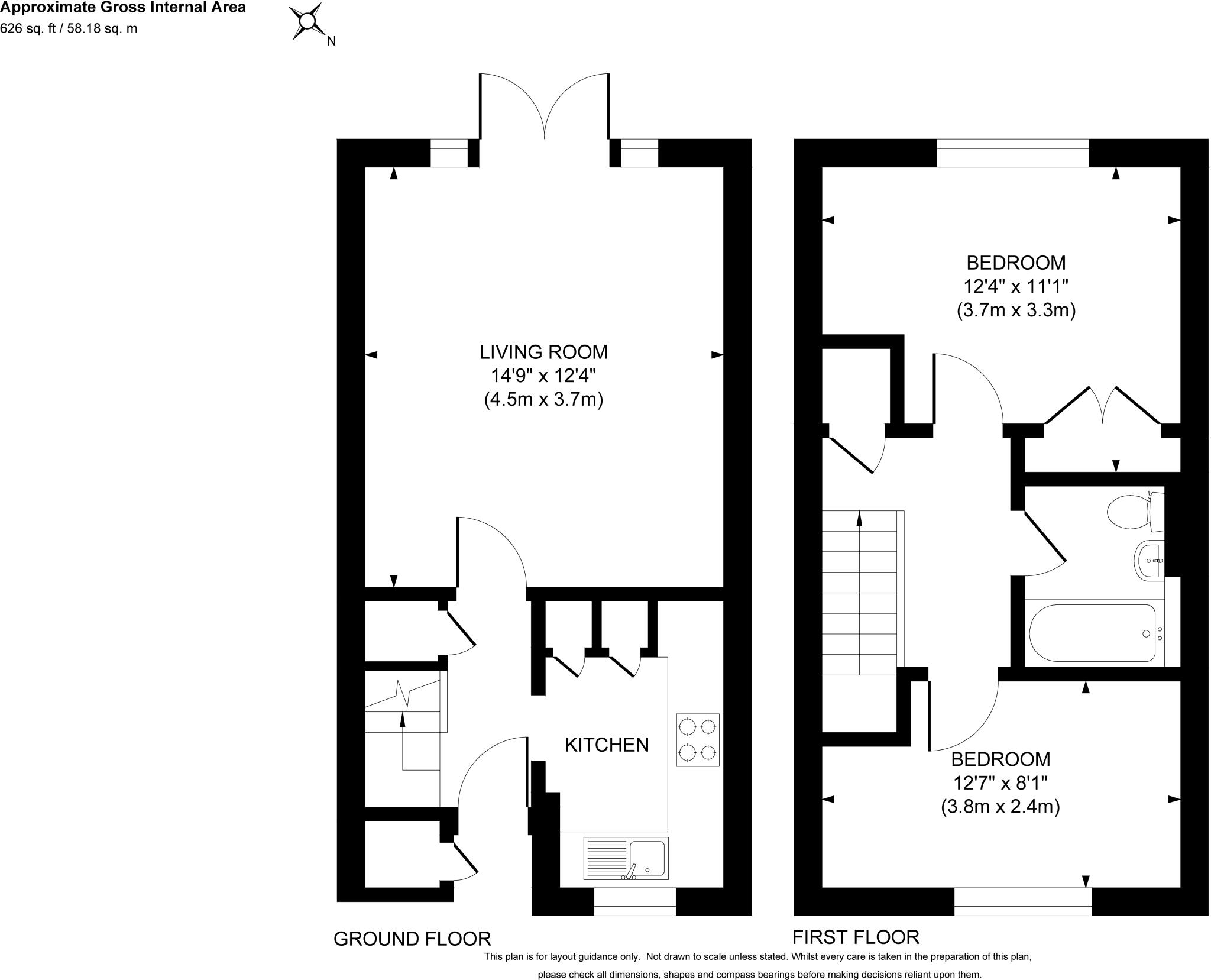
- Two double bedrooms, one bathroom, approx. 624 sq ft
- Garage in block plus residents’ parking nearby
- Double glazing and mains gas central heating
- Kitchen dated and small; modernisation advised
- Small rear garden and limited plot for extension
- Cavity walls assumed without insulation (1967–75 build)
- Fast broadband, excellent mobile signal, low local crime
A practical two-bedroom mid-terrace in Oakfield, Woking, offering a compact but comfortable layout across two storeys. The sitting/dining room opens to a private rear garden and patio, while a garage in a nearby block and residents’ parking add valuable convenience for car owners.
The home benefits from double glazing, gas central heating with boiler and radiators, and an affordable council tax band. Located in a predominantly residential area close to good primary and secondary schools, local shops and reliable transport links, it suits first-time buyers, young families or buy-to-let purchasers seeking steady rental demand.
The property is largely move-in ready but shows signs of age in the kitchen and some internal fittings; modernisation would add clear value. Note the property’s cavity walls are assumed uninsulated and the plot is small, so there is limited scope for major extension without planning changes. Overall this is a sensible, well-located freehold starter home with practical upside for modest investment.
2 bedroom terraced house for sale in Oakfield, Woking, Surrey, GU21 — £365,000 • 2 bed • 1 bath • 659 ft²
2 bedroom terraced house for sale in Oakfield, Woking, Surrey, GU21 — £350,000 • 2 bed • 1 bath • 624 ft²
2 bedroom terraced house for sale in Oakfield, Woking, GU21 — £360,000 • 2 bed • 1 bath • 646 ft²
2 bedroom end of terrace house for sale in Knightswood, Woking, Surrey, GU21 — £380,000 • 2 bed • 1 bath • 785 ft²
2 bedroom end of terrace house for sale in Knightswood, Woking, Surrey, GU21 — £350,000 • 2 bed • 1 bath • 654 ft²
2 bedroom terraced house for sale in Eastmead, Woking, Surrey, GU21 — £360,000 • 2 bed • 1 bath • 647 ft²










































