Elegant two-bedroom home with private terrace and communal garden access.
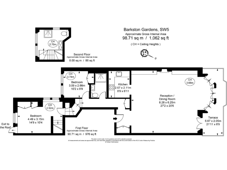
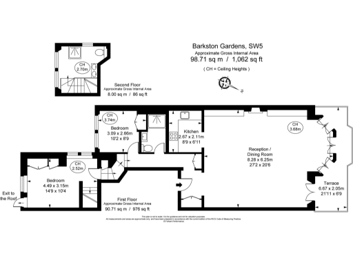
Large 1,062 sq ft first-floor apartment with generous reception space
Set on one of Earls Court’s most elegant red-brick squares, this first-floor two-bedroom apartment offers grand proportions, period detail and a private terrace overlooking the communal garden. High ceilings, floor-to-ceiling windows, a decorative fireplace and wooden floors give the principal reception room a sense of scale and light that’s rare in central London.
The layout provides two double bedrooms with fitted wardrobes, two bathrooms and generous storage across approximately 1,062 sq ft. A semi-open-plan, fully integrated kitchen complements modern living while retaining original architectural features. Residents may use the beautiful garden square (subject to terms).
Practical strengths include a very long lease (share of freehold), mains gas heating, fast broadband and an excellent mobile signal. The building dates from c.1900–1929 with solid-brick walls; this gives character but means walls likely lack modern insulation. Service charges average £1,156 and council tax is described as quite expensive — factor these running costs into budgeting.
This apartment will suit buyers seeking a spacious, characterful central London home with outdoor space and excellent local amenities. It offers immediate comfort with scope for cosmetic updating to personalise finishes and improve energy efficiency.
2 bedroom flat for sale in Barkston Gardens, Earls Court, London, SW5 — £1,500,000 • 2 bed • 2 bath • 953 ft²
6 bedroom flat for sale in Barkston Gardens,
Earls Court, SW5 — £3,150,000 • 6 bed • 3 bath • 2705 ft²
3 bedroom flat for sale in Barkston Gardens,
Earls Court, SW5 — £1,500,000 • 3 bed • 2 bath • 1341 ft²
2 bedroom flat for sale in Barkston Gardens, Earls Court, SW5 — £1,500,000 • 2 bed • 2 bath • 953 ft²
2 bedroom flat for sale in Roberts Court,
43 Barkston Gardens, SW5 — £1,500,000 • 2 bed • 2 bath • 952 ft²
2 bedroom flat for sale in Barkston Gardens, South Kensington, London, SW5 — £1,850,000 • 2 bed • 2 bath • 1062 ft²


























































