Affordable 25% shared ownership flat with parking and easy rail links — option to buy 100%.
Allocated off-street parking plus visitor permit
Lift access and entry-phone for secure communal access
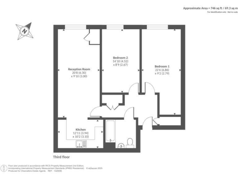
Two double bedrooms and large entrance storage cupboard
Open-plan kitchen/living/dining with integrated appliances
25% shared ownership at £62,500; 100% purchase option £250,000
Leasehold: 125 years from 20/03/2020 (≈120 years remaining)
Within one mile of town centre and mainline train station
Mixed nearby school ratings; check catchment and Ofsted reports
This two-double-bedroom shared ownership apartment offers an affordable route onto the property ladder in central Basingstoke. The open-plan kitchen/living/dining room provides flexible space for daily life and entertaining, while large windows bring in natural light. Allocated off-street parking plus a visitor permit and lift access add everyday convenience.
The sale is currently a 25% share priced at £62,500 with the option to purchase 100% for £250,000; the lease runs 125 years from 20/03/2020 (about 120 years remaining). The layout is traditional with a long entrance hall, generous storage cupboard, two double bedrooms and a family bathroom. Integrated kitchen appliances are already in place, reducing immediate spend.
This flat will suit first-time buyers or buyers seeking a reasonably priced home close to transport links — Basingstoke town centre and the mainline station are within a mile. The building is modern and low-crime; council tax is described as cheap. Local schools include several rated Good, though there are nearby schools with lower Ofsted outcomes, so check individual catchment plans.
Buyers should note this is a leasehold, shared ownership property; consider service charges, stairwell/communal upkeep (typical in modern complexes), and reviewing lease documentation before committing. The apartment is an average-sized, well-presented modern flat that offers clear potential as a long-term home or affordable stepping-stone to full ownership.
2 bedroom flat for sale in Basingstoke, Hampshire, RG21 — £250,000 • 2 bed • 1 bath • 746 ft²
2 bedroom flat for sale in Wadham Gardens, Basingstoke, Hampshire, RG24 — £92,000 • 2 bed • 1 bath • 765 ft²
2 bedroom flat for sale in Albatross Way, Basingstoke, Hampshire, RG23 — £127,500 • 2 bed • 1 bath • 639 ft²
2 bedroom apartment for sale in The Hollies, Mapledurwell, Basingstoke, RG24 — £100,000 • 2 bed • 1 bath • 744 ft²
2 bedroom flat for sale in Wiltshire Crescent, Basingstoke, Hampshire, RG22 — £184,500 • 2 bed • 1 bath • 645 ft²
1 bedroom flat for sale in Woolhampton Drive, Basingstoke, Hampshire, RG24 — £108,000 • 1 bed • 1 bath • 421 ft²






























































