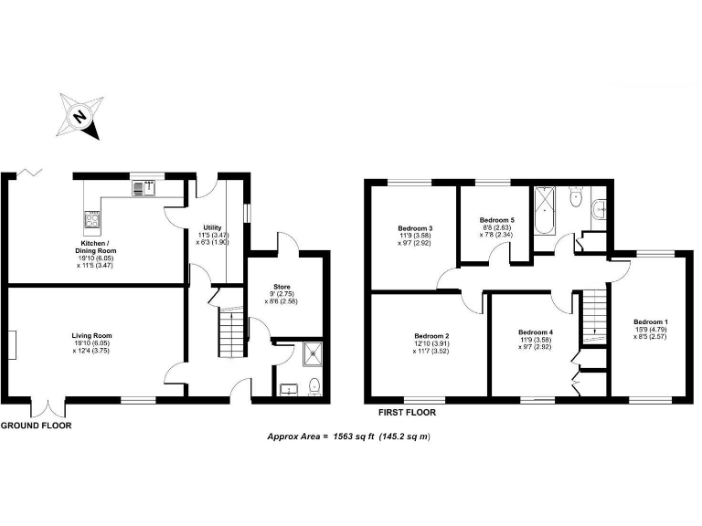
**Standout Features:**
- Recently extended, modern five-bedroom detached home
- Spacious living areas with abundant natural light
- Ground floor wet room and utility room for convenience
- Stunning open views over fields from several rooms
- Large front and rear gardens ideal for family enjoyment and outdoor activities
- Secluded village location in Cockshutt with local amenities nearby
- Ample off-street parking
This beautifully renovated five-bedroom detached home offers a perfect blend of modern comfort and spacious living in a tranquil village setting. The heart of this residence is its expansive kitchen/dining room, featuring bi-fold doors that open to a large garden, ideal for entertaining or family gatherings. The generously sized living room boasts large windows that frame idyllic views over the adjacent fields, creating a serene atmosphere within the home.
Each of the five bedrooms provides ample space, with the main bedroom enjoying dual aspects and lovely countryside views. A convenient ground-floor wet room adds to the property's appeal, catering seamlessly to growing families or visitors.
Set in the charming hamlet of Cockshutt, this property benefits from a host of local amenities, including a primary school, village shop, and pub just a stone's throw away. While mobile signal may be limited and broadband speeds are average, the peaceful surroundings make it a sanctuary for those looking to escape the hustle and bustle.
Don't miss the opportunity to own this home that not only promises comfort and space but also the potential for future renovations to make it uniquely yours. With open views, a bulk of gardening space, and a community-oriented atmosphere, this property is a rare find that won't last long on the market. Act fast to secure your family's next chapter in this idyllic setting!
5 bedroom detached house for sale in Crosemere Court, Ellesmere, SY12 — £475,000 • 5 bed • 2 bath • 2117 ft²
4 bedroom detached house for sale in Shrewsbury Road, Cockshutt, SY12 0JH, SY12 — £750,000 • 4 bed • 2 bath • 3387 ft²
2 bedroom semi-detached house for sale in Crosemere Crescent, Ellesmere, SY12 — £189,995 • 2 bed • 1 bath • 970 ft²
5 bedroom house for sale in Cockshutt, Nr Ellesmere., SY12 — £425,000 • 5 bed • 2 bath • 3000 ft²
5 bedroom detached house for sale in Knights Grove, Knockin, Oswestry, SY10 8PU., SY10 — £580,000 • 5 bed • 3 bath • 2478 ft²
5 bedroom detached house for sale in Newtown, Wem, Shrewsbury, SY4 — £650,000 • 5 bed • 2 bath • 2272 ft²


















































































































































































