**Standout Features:**
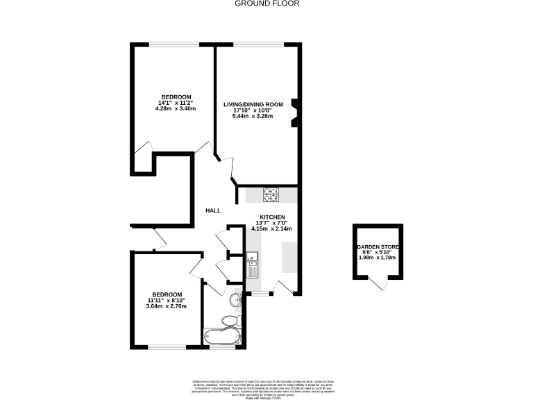
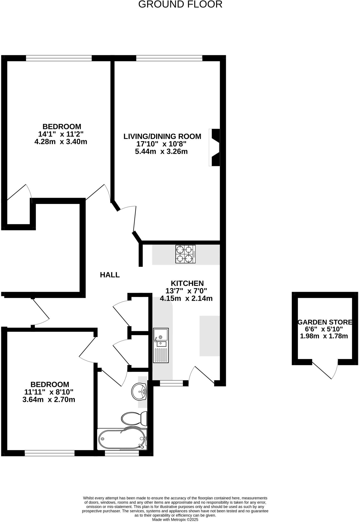
- Light and spacious two-bedroom ground floor maisonette
- Recently refitted kitchen
- Sizable 17-foot living/dining area
- Access to private courtyard and communal gardens
- Off-street resident parking
- Share of freehold with 983 years remaining on the lease
- Walking distance to Camberley town center
- Council Tax Band: C, affordable
**Summary:**
Discover this inviting two-bedroom ground floor maisonette, perfectly situated just a short stroll from Camberley town center. The property offers modern living with a recently updated kitchen, a generous 17-foot living and dining room, and two double bedrooms—ideal for families or roommates. Enjoy seamless access to a private courtyard, complemented by well-maintained communal gardens offering additional outdoor space.
With off-street resident parking and a share of the freehold adding to its appeal, this property presents a unique opportunity for those seeking comfort and convenience. Its energy-efficient uPVC double glazing ensures a peaceful ambiance throughout. While the property is well-maintained, it's recommended to conduct routine check-ups to preserve its integrity. The location is enriched with local amenities, schools, and family-friendly spaces, making it a fantastic choice for new homeowners or investors. Don't miss out on this rare find in a thriving neighborhood—schedule your viewing today!
3 bedroom maisonette for sale in Abbey Court, Camberley, Surrey, GU15 — £300,000 • 3 bed • 1 bath • 588 ft²
2 bedroom maisonette for sale in Portsmouth Road, Camberley, Surrey, GU15 — £250,000 • 2 bed • 2 bath • 601 ft²
2 bedroom bungalow for sale in Woodlands Road, Camberley, Surrey, GU15 — £300,000 • 2 bed • 2 bath • 670 ft²
3 bedroom maisonette for sale in Abbey Court, Camberley, Surrey, GU15 — £300,000 • 3 bed • 1 bath • 632 ft²
2 bedroom flat for sale in London Road, Camberley, Surrey, GU15 — £240,000 • 2 bed • 2 bath • 498 ft²
2 bedroom flat for sale in Lancaster Drive, Camberley, Surrey, GU15 — £280,000 • 2 bed • 2 bath • 509 ft²






















































