**Standout Features:**
- Grade II Listed Cottage with historic charm
- No onward chain, allowing for a swift move
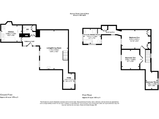
- Three bedrooms plus a study—ideal for families or remote work
- Convenient town center location with amenities within walking distance
- Enclosed garden space with potential for gardening enthusiasts
- Gas central heating, contributing to comfort
**Potential Downsides:**
- Renovation or extension possibilities are limited due to listing status
- Some areas may require maintenance or updates; potential for damp in living spaces
This delightful Grade II listed three-bedroom terraced cottage on Hamilton Street boasts a perfect blend of historic charm and modern convenience, making it an attractive opportunity for families or first-time buyers. With no onward chain, you can quickly settle into this cozy home. The inviting living/dining room features rustic exposed beams and stone walls, leading to a dedicated study space—ideal for remote work or hobbies. Upstairs, the well-sized bedrooms include a master with an ensuite and built-in wardrobes, providing comfort and functionality.
Outside, the property features a quaint front patio and a separate enclosed garden, perfect for unwinding or cultivating plants. The strong sense of community and proximity to local shops, schools, and recreational spaces enhance day-to-day living. While some areas may require maintenance, the character and investment potential of this cottage, set in the scenic coastal town of Fishguard, cannot be understated. Don’t miss the chance to make this unique property your new home!
2 bedroom end of terrace house for sale in Newport Road, Lower Town, Fishguard, SA65 — £310,000 • 2 bed • 2 bath • 1306 ft²
4 bedroom terraced house for sale in High Street, Fishguard, Pembrokeshire, SA65 — £325,000 • 4 bed • 2 bath
1 bedroom terraced house for sale in 10 Wallis Street, Fishguard, Pembrokeshire, SA65 9HP, SA65 — £215,000 • 1 bed • 1 bath • 636 ft²
2 bedroom terraced house for sale in 20 Main Street, Fishguard, SA65 — £99,950 • 2 bed • 1 bath • 513 ft²
3 bedroom cottage for sale in Hill Cottage, Tower Hill, Fishguard, SA65 — £249,950 • 3 bed • 1 bath • 1075 ft²
2 bedroom end of terrace house for sale in Smyth Street, Fishguard, SA65 — £145,000 • 2 bed • 1 bath • 905 ft²






































































































