Quiet end‑of‑road location with garage and scope to modernise.
Three bedrooms including first-floor master with wardrobe
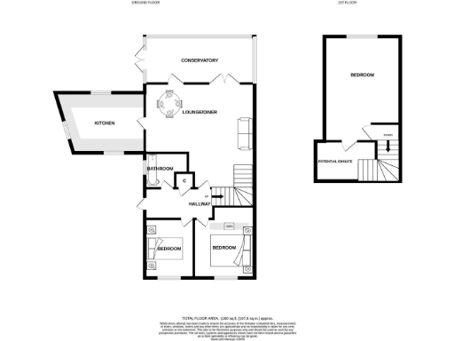
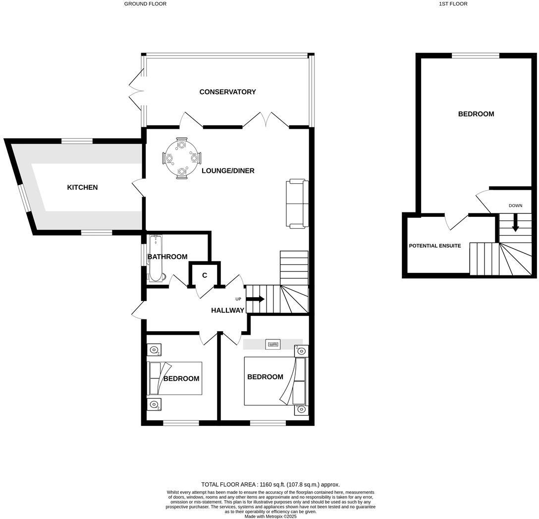
Set at the end of a quiet cul‑de‑sac, this semi‑detached chalet bungalow offers practical single‑level living with scope to modernise. The property includes three bedrooms (one on the first floor), a generous lounge with French doors, a conservatory, and a kitchen with space for appliances. A driveway and garage provide parking for two cars while a modest, mature rear garden and summerhouse add private outdoor space.
The house is offered chain free on a freehold title and measures approximately 1,160 sq ft, giving a comfortable footprint for downsizers or small families. Gas central heating, double glazing and a wood burner in the lounge are useful features; broadband and mobile signal are excellent and the area reports low crime and accessible local amenities.
The property requires light refurbishment throughout — decor is dated and some updating is needed to fully realise the loft/first‑floor bedroom and potential ensuite. Insulation details and double‑glazing install dates are unknown and the plot is small, so any extension options will be limited. Buyers should budget for cosmetic and possible modernisation works to maximise value.
Nearby schools, parks and local shops make this a convenient, well‑connected option for those seeking a quiet residential setting with straightforward renovation potential. For someone looking to personalise a home rather than move into a turnkey property, this bungalow offers a solid base and clear value drivers.
3 bedroom bungalow for sale in Dorchester Road, Ipswich, Suffolk, IP3 — £300,000 • 3 bed • 1 bath • 786 ft²
3 bedroom bungalow for sale in Evesham Close, Ipswich, Suffolk, IP2 — £300,000 • 3 bed • 1 bath • 915 ft²
3 bedroom semi-detached bungalow for sale in Ashley Road, Harwich, Essex, CO12 — £215,000 • 3 bed • 1 bath • 645 ft²
3 bedroom semi-detached house for sale in Collimer Close, Chelmondiston, IP9 — £389,950 • 3 bed • 1 bath • 1604 ft²
3 bedroom chalet for sale in Princethorpe Road, Ipswich, IP3 — £395,000 • 3 bed • 2 bath • 1355 ft²
2 bedroom semi-detached bungalow for sale in Tinabrook Close, Ipswich, IP2 — £250,000 • 2 bed • 1 bath • 710 ft²


















































