**Standout Features:**
- Immaculate second-floor apartment in a charming Victorian building
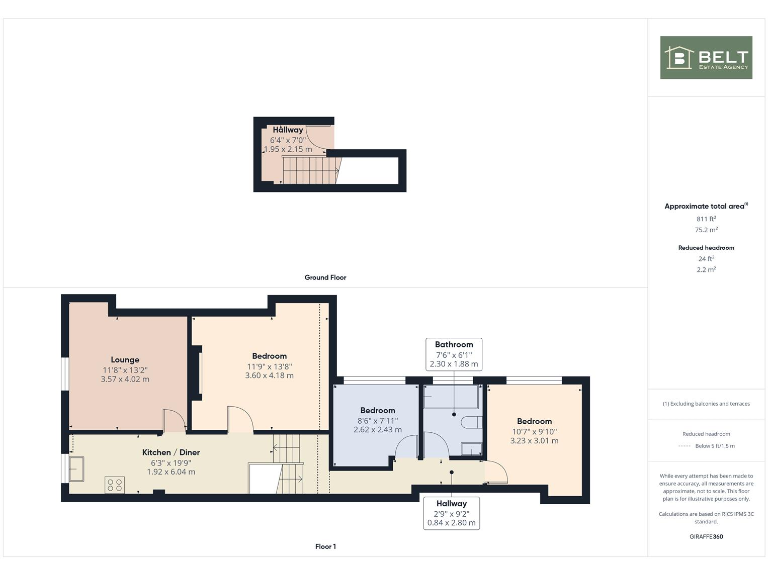
- Three spacious bedrooms, perfect for families or as a coastal getaway
- Modern open-plan kitchen/diner with contemporary finishes
- Bright and welcoming lounge with period features
- Freehold property with low council tax band (A)
- Central location near amenities and 500 meters from the foreshore
**Potential Concerns:**
- Property shows no current major structural or maintenance issues but potential buyers are encouraged to undertake their own inspections
This immaculate second-floor apartment on Trinity Road offers a perfect blend of modern living and charming Victorian architecture, making it an ideal choice for families or investors seeking a coastal retreat. With three generously-sized bedrooms, a bright lounge, and a modern open-plan kitchen/diner, the flat provides ample space for comfortable living. Enjoy the convenience of being centrally located, just a short distance from local shops, leisure facilities, and the beautiful foreshore.
The property, characterized by stunning period details and high ceilings, promises a cozy yet spacious atmosphere. As a freehold, it presents future renovation potential for buyers looking to personalize their home. Don't miss out on the opportunity to own this lovely flat in a thriving area—schedule your viewing today before it’s gone!
4 bedroom maisonette for sale in Victoria Road, Bridlington, YO15 — £129,950 • 4 bed • 1 bath • 1215 ft²
1 bedroom flat for sale in Victoria Road, Bridlington, YO15 — £68,000 • 1 bed • 1 bath • 427 ft²
2 bedroom apartment for sale in The Crescent, Bridlington, YO15 — £110,000 • 2 bed • 1 bath • 720 ft²
2 bedroom flat for sale in The Crescent, YO15 — £120,000 • 2 bed • 2 bath • 700 ft²
5 bedroom terraced house for sale in Trinity Road, Bridlington, YO15 — £220,000 • 5 bed • 2 bath • 1558 ft²
1 bedroom flat for sale in Blackburn Avenue, Bridlington, YO15 — £55,000 • 1 bed • 1 bath • 344 ft²










































